Bedrijfsruimte Het Gangboord 45 Drachten

Het Gangboord 45, 9206BJ Drachten

Ontvang updates voor De Haven

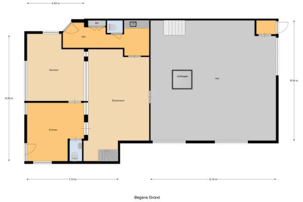
Dit bedrijfspand op het adres Het Gangboord 45 te Drachten is breed inzetbaar als bedrijfsruimte. Het betreft hier bestaande bouw uit 2000. Een energielabel is niet beschikbaar. Het pand beschikt over één of meerdere voorzieningen waaronder overheaddeuren, betonvloer, heater, toilet, pantry en inbouwarmaturen. Deze bedrijfsruimte heeft een oppervlakte van 171 m² en bestaat uit 2 bouwlagen.

Bekijk alle bedrijfspanden in De Haven

Status bedrijfsobject Bedrijfsruimte Het Gangboord 45 Drachten

Huidige status
Beschikbaar
Aangeboden sinds
15 mei 2023
Aanvaarding
In overleg

Eigendom en huurprijs bedrijfsruimte

Laatst bekende huurprijs
€ 1.375 per maand

Omgeving Bedrijfsruimte Het Gangboord 45 Drachten

Ligging
Bedrijventerrein

Indeling en inrichting bedrijfspand

Mogelijke functies
Kantoorruimte
Oppervlakte
171 m²
Oppervlakte bedrijfshal
91 m²
Vrije hoogte
5 m
Vrije overspanning
10 m

Voorzieningen in de buurt

Boodschappen1,6 km
Cafetaria1,4 km
Kinderdagverblijf1,7 km
Treinstation17,0 km
Alle voorzieningen in De Haven

Binnenkijken bij Het Gangboord 45 te Drachten

Meer meldingen in deze omgeving

Nieuw bedrijf
November 2025
De Hemmen 2, 9206AG Drachten

Onroerend goed
Vrijdag 14-11-2025
Tussendiepen 80, 9206AE Drachten

Onroerend goed
Dinsdag 11-11-2025
De Gaffel 19, 9206AV Drachten

Faillissement
Woensdag 5-11-2025
Het Helmhout 6, 9206AZ Drachten

Faillissement
Donderdag 30-10-2025
Tussendiepen 88, 9206AE DRACHTEN

Onroerend goed
Woensdag 29-10-2025
Het Helmhout 53, 9206AZ Drachten

Onroerend goed
Woensdag 29-10-2025
Het Helmhout 14-b, 9206AZ Drachten

Nieuw bedrijf
Oktober 2025
De Roef 6B26, 9206AK Drachten

Direct een e-mail ontvangen bij nieuwe meldingen in deze regio?

Meld je dan GRATIS aan voor de Oozo Alert service voor De Haven

Instellen

Meer nieuws in De Haven

Weten hoe eenvoudig het is om af te vallen? Zonder pillen en smeersels en zonder je in het zweet te werken!
Kijk op eenvoudig-afvallen.nl

© 2012 - 2025 OOZO.nl - info@oozo.nl - Gegevens verwijderen? | Disclaimer | Privacy statement