Bijsterhuizen 2001- 017, 6604LH Wijchen
Ontvang updates voor Bedrijventerrein Bijsterhuizen
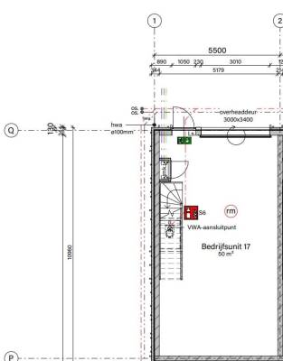
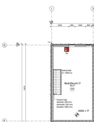
Dit bedrijfspand op het adres Bijsterhuizen 2001- 017 te Wijchen is breed inzetbaar als bedrijfsruimte. Het betreft hier bestaande bouw uit 2025. Een energielabel is niet verplicht. Het pand beschikt over één of meerdere voorzieningen waaronder airconditioning, overheaddeuren, krachtstroom, betonvloer, toilet en pantry. Deze bedrijfsruimte heeft een oppervlakte van 100 m².
Bekijk alle bedrijfspanden in Bedrijventerrein Bijsterhuizen
Meld je dan GRATIS aan voor de Oozo Alert service voor Bedrijventerrein Bijsterhuizen
Instellen
© 2012 - 2025 OOZO.nl - info@oozo.nl - Gegevens verwijderen? | Disclaimer | Privacy statement XS SM MD LG