Bedrijfsruimte Keulenaar 5 Wijk bij Duurstede

Keulenaar 5, 3961NM Wijk bij Duurstede

Ontvang updates voor Verspreide huizen

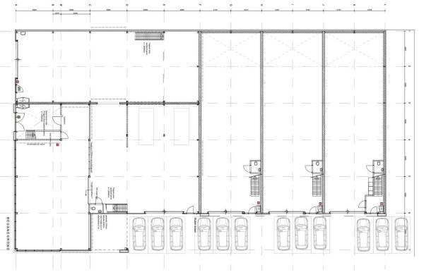
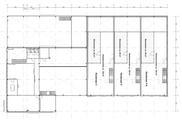
Dit bedrijfspand op het adres Keulenaar 5 te Wijk bij Duurstede is breed inzetbaar als bedrijfsruimte. Het betreft hier bestaande bouw met energielabel A+. Het pand beschikt over één of meerdere voorzieningen waaronder airconditioning, mechanische ventilatie, overheaddeuren, betonvloer, toilet, pantry en te openen ramen. Deze bedrijfsruimte heeft een oppervlakte van 330 m² (in units vanaf 210 m²) en bestaat uit 1 bouwlaag.

Bekijk alle bedrijfspanden in Verspreide huizen

Status bedrijfsobject Bedrijfsruimte Keulenaar 5 Wijk bij Duurstede

Huidige status
Beschikbaar
Aangeboden sinds
15-11-2025
Aanvaarding
In overleg

Eigendom en huurprijs bedrijfsruimte

Laatst bekende huurprijs
€ 2.500 per maand

Omgeving Bedrijfsruimte Keulenaar 5 Wijk bij Duurstede

Ligging
Bedrijventerrein
Bereikbaarheid
Bushalte op 500 m tot 1000 m, NS Intercitystation

Indeling en inrichting bedrijfspand

Oppervlakte
330 m² (in units vanaf 210 m²)
Oppervlakte bedrijfshal
210 m²
Parkeergelegenheid
4 niet-overdekte parkeerplaatsen

Voorzieningen in de buurt

Binnenkijken bij Keulenaar 5 te Wijk bij Duurstede

Meer meldingen in deze omgeving

Onroerend goed
Zaterdag 15-11-2025
Keulenaar 3, 3961NM Wijk bij Duurstede

Nieuw bedrijf
November 2025
Aalswaard 2, 3962MZ Wijk bij Duurstede

Onroerend goed
Dinsdag 11-11-2025
Weegmaat 19, 3961NN Wijk bij Duurstede

112 melding
Vrijdag 31-10-2025 om 16:02
Molenvliet, Wijk bij Duurstede

Nieuw bedrijf
Oktober 2025
Keulenaar 34, 3961NM Wijk bij Duurstede

Binnenkijken bij
Donderdag 9-10-2025
Graaf van Lynden van Sandenburgweg 320, 3962RB Wijk bij Duurstede

Binnenkijken bij
Zaterdag 27-9-2025
Wijkersloot 23, 3961MN Wijk bij Duurstede

112 melding
Donderdag 25-9-2025 om 13:25
Kanaal Noord, 3961MZ Wijk bij Duurstede

Direct een e-mail ontvangen bij nieuwe meldingen in deze regio?

Meld je dan GRATIS aan voor de Oozo Alert service voor Verspreide huizen

Instellen

Meer nieuws in Verspreide huizen

Weten hoe eenvoudig het is om af te vallen? Zonder pillen en smeersels en zonder je in het zweet te werken!
Kijk op eenvoudig-afvallen.nl

© 2012 - 2025 OOZO.nl - info@oozo.nl - Gegevens verwijderen? | Disclaimer | Privacy statement