Bedrijfsruimte Nijverheidstraat 1-b Moerkapelle

Nijverheidstraat 1-b , 2751GR Moerkapelle

Ontvang updates voor Bedrijventerrein Moerkapelle

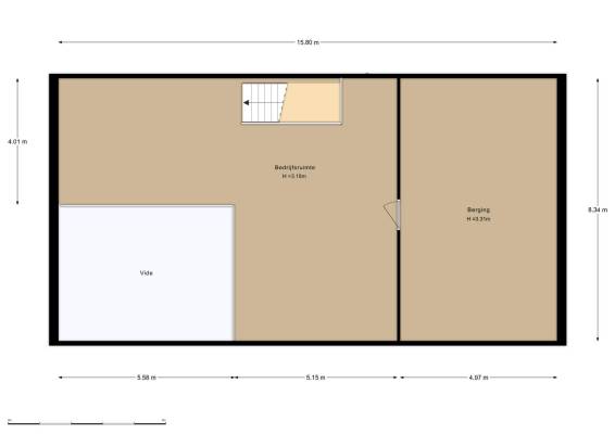
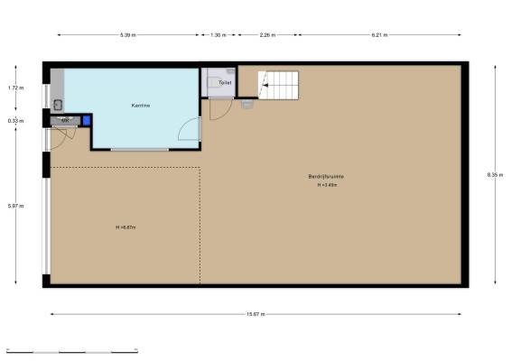
Dit bedrijfspand op het adres Nijverheidstraat 1-b te Moerkapelle is breed inzetbaar als bedrijfsruimte. Het betreft hier bestaande bouw uit 2024. Een energielabel is niet verplicht. Het pand beschikt over één of meerdere voorzieningen waaronder overheaddeuren, krachtstroom, betonvloer, toilet en pantry. Deze bedrijfsruimte heeft een oppervlakte van 274 m² en bestaat uit 1 bouwlaag.

Bekijk alle bedrijfspanden in Bedrijventerrein Moerkapelle

Status bedrijfsobject Bedrijfsruimte Nijverheidstraat 1-b Moerkapelle

Huidige status
Beschikbaar
Aangeboden sinds
7 januari 2026
Aanvaarding
Per direct beschikbaar

Eigendom en huurprijs bedrijfsruimte

Laatst bekende huurprijs
€ 1.895 per maand
Servicekosten
€ 50 per maand (21% BTW van toepassing)

Omgeving Bedrijfsruimte Nijverheidstraat 1-b Moerkapelle

Ligging
Bedrijventerrein
Bereikbaarheid
Bushalte op 500 m tot 1000 m, NS Intercitystation

Indeling en inrichting bedrijfspand

Oppervlakte
274 m²
Oppervlakte bedrijfshal
252 m²
Perceel oppervlakte
152 m²
Draagvermogen
1.000 kg/m²
Vrije hoogte
6,9 m
Vrije overspanning
8 m
Parkeergelegenheid
1 niet-overdekte parkeerplaats

Voorzieningen in de buurt

Boodschappen0,5 km
Cafetaria3,2 km
Kinderdagverblijf0,7 km
Treinstation5,5 km
Alle voorzieningen in Bedrijventerrein Moerkapelle

Binnenkijken bij Nijverheidstraat 1-b te Moerkapelle

Meer meldingen in deze omgeving

Faillissement
Woensdag 8-4-2026
Bredeweg 45, 2751GH Moerkapelle

Binnenkijken bij
Vrijdag 3-4-2026
Bredeweg 30A, 2752AA Moerkapelle

Faillissement
Woensdag 11-3-2026
Bredeweg 39a, 2751GH Moerkapelle

Onroerend goed
Woensdag 18-2-2026
Bredeweg 26, 2752AA Moerkapelle

112 melding
Dinsdag 17-2-2026 om 01:38
Bredeweg, 2751GH Moerkapelle

Nieuw bedrijf
Februari 2026
Bredeweg 40, 2752AA Moerkapelle

Nieuw bedrijf
Januari 2026
Ambachtstraat 5, 2751GP Moerkapelle

Nieuw bedrijf
December 2025
Bredeweg 39b, 2751GH MOERKAPELLE

Direct een e-mail ontvangen bij nieuwe meldingen in deze regio?

Meld je dan GRATIS aan voor de Oozo Alert service voor Bedrijventerrein Moerkapelle

Instellen

Meer nieuws in Bedrijventerrein Moerkapelle

Weten hoe eenvoudig het is om af te vallen? Zonder pillen en smeersels en zonder je in het zweet te werken!
Kijk op eenvoudig-afvallen.nl

© 2012 - 2026 OOZO.nl - info@oozo.nl - Gegevens verwijderen? | Disclaimer | Privacy statement