Bedrijfsruimte 2e Tochtweg 60 Nieuwerkerk aan den IJssel

2e Tochtweg 60, 2913LS Nieuwerkerk aan den IJssel

Ontvang updates voor Verspreide bebouwing Zuidplaspolder Nieuwerkerk aan den

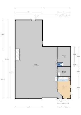
Dit bedrijfspand op het adres 2e Tochtweg 60 te Nieuwerkerk aan den IJssel is breed inzetbaar als bedrijfsruimte. Het betreft hier bestaande bouw uit 1980. Een energielabel is niet beschikbaar. Het pand beschikt over één of meerdere voorzieningen waaronder lichtstraten, overheaddeuren, krachtstroom, betonvloer en toilet. Deze bedrijfsruimte heeft een oppervlakte van 255 m².

Bekijk alle bedrijfspanden in Verspreide bebouwing Zuidplaspolder Nieuwerkerk aan den

Status bedrijfsobject Bedrijfsruimte 2e Tochtweg 60 Nieuwerkerk aan den IJssel

Huidige status
Beschikbaar
Aangeboden sinds
3 maart 2026
Aanvaarding
Per direct beschikbaar

Eigendom en huurprijs bedrijfsruimte

Laatst bekende huurprijs
€ 1.800 per maand

Omgeving Bedrijfsruimte 2e Tochtweg 60 Nieuwerkerk aan den IJssel

Ligging
Landelijk gebied

Indeling en inrichting bedrijfspand

Oppervlakte
255 m²
Oppervlakte bedrijfshal
255 m²
Draagvermogen
2.000 kg/m²
Vrije hoogte
6,4 m

Voorzieningen in de buurt

Boodschappen1,9 km
Cafetaria1,9 km
Kinderdagverblijf1,5 km
Treinstation2,9 km
Alle voorzieningen in Verspreide bebouwing Zuidplaspolder Nieuwerkerk aan den

Binnenkijken bij 2e Tochtweg 60 te Nieuwerkerk aan den IJssel

Meer meldingen in deze omgeving

112 melding
Dinsdag 17-3-2026 om 17:00
Schielandweg, 2914LP Nieuwerkerk aan den IJssel

Nieuw bedrijf
Maart 2026
1e Tochtweg 42, 2913LP Nieuwerkerk aan den IJssel

Nieuw bedrijf
Maart 2026
Westringdijk 14, 2913LK NIEUWERKERK AAN DEN IJSSEL

Nieuw bedrijf
Februari 2026
Westringdijk 37, 2913LL Nieuwerkerk aan den IJssel

Nieuw bedrijf
Februari 2026
2e Tochtweg 90, 2913LS Nieuwerkerk aan den IJssel

112 melding
Dinsdag 24-2-2026 om 00:27
Albert van 't Hartweg, Nieuwerkerk aan den IJssel

112 melding
Vrijdag 13-2-2026 om 12:26
1e Tochtweg, 2913LN Nieuwerkerk aan den IJssel

112 melding
Dinsdag 3-2-2026 om 09:19
Schielandweg, 2914LP Nieuwerkerk aan den IJssel

Direct een e-mail ontvangen bij nieuwe meldingen in deze regio?

Meld je dan GRATIS aan voor de Oozo Alert service voor Verspreide bebouwing Zuidplaspolder Nieuwerkerk aan den

Instellen

Meer nieuws in Verspreide bebouwing Zuidplaspolder Nieuwerkerk aan den

Weten hoe eenvoudig het is om af te vallen? Zonder pillen en smeersels en zonder je in het zweet te werken!
Kijk op eenvoudig-afvallen.nl

© 2012 - 2026 OOZO.nl - info@oozo.nl - Gegevens verwijderen? | Disclaimer | Privacy statement