Bedrijfsruimte Hekkehorst 5-g Zutphen

Hekkehorst 5-g , 7207BS Zutphen

Ontvang updates voor Vespreide huizen Leesten

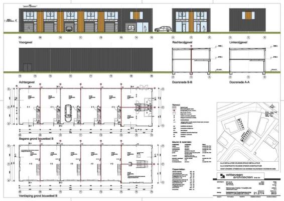
Dit bedrijfspand op het adres Hekkehorst 5-g te Zutphen is breed inzetbaar als bedrijfsruimte. Het betreft hier bestaande bouw uit 2023. Een energielabel is niet verplicht. Het pand beschikt over één of meerdere voorzieningen waaronder overheaddeuren, betonvloer, toilet, pantry en te openen ramen. Deze bedrijfsruimte heeft een oppervlakte van 126 m² en bestaat uit 1 bouwlaag.

Bekijk alle bedrijfspanden in Vespreide huizen Leesten

Status bedrijfsobject Bedrijfsruimte Hekkehorst 5-g Zutphen

Huidige status
Beschikbaar
Aangeboden sinds
07-03-2026
Aanvaarding
In overleg

Eigendom en huurprijs bedrijfsruimte

Laatst bekende huurprijs
€ 1.000 per maand
Servicekosten
€ 25 per vierkante meter per jaar (21% BTW van toe

Omgeving Bedrijfsruimte Hekkehorst 5-g Zutphen

Ligging
Bedrijventerrein
Bereikbaarheid
Bushalte op 500 m tot 1000 m, NS Intercitystation

Indeling en inrichting bedrijfspand

Oppervlakte
126 m²
Oppervlakte bedrijfshal
63 m²
Perceel oppervlakte
3.215 m²
Vrije hoogte
3,5 m

Voorzieningen in de buurt

Boodschappen1,8 km
Cafetaria2,4 km
Kinderdagverblijf2,3 km
Treinstation4,9 km
Alle voorzieningen in Vespreide huizen Leesten

Binnenkijken bij Hekkehorst 5-g te Zutphen

Meer meldingen in deze omgeving

Nieuw bedrijf
Mei 2026
Hekkehorst 5a, 7207BS Zutphen

Faillissement
Donderdag 23-4-2026
Zonnehorst 13g, 7207BT Zutphen

Faillissement
Donderdag 9-4-2026
Zonnehorst 16, 7207BT Zutphen

112 melding
Woensdag 1-4-2026 om 12:49
Verlengde Ooyerhoekseweg, 7207BJ Zutphen

112 melding
Woensdag 1-4-2026 om 12:49
Verlengde Ooyerhoekseweg, 7207BJ Zutphen

Onroerend goed
Dinsdag 31-3-2026
Hekkehorst 1a, 7207BS Zutphen

Nieuw bedrijf
Maart 2026
Gelderhorst 1c, 7207BH Zutphen

Faillissement
Maandag 9-3-2026
Luchtenhorst 10, 7207BV Zutphen

Direct een e-mail ontvangen bij nieuwe meldingen in deze regio?

Meld je dan GRATIS aan voor de Oozo Alert service voor Vespreide huizen Leesten

Instellen

Meer nieuws in Vespreide huizen Leesten

Weten hoe eenvoudig het is om af te vallen? Zonder pillen en smeersels en zonder je in het zweet te werken!
Kijk op eenvoudig-afvallen.nl

© 2012 - 2026 OOZO.nl - info@oozo.nl - Gegevens verwijderen? | Disclaimer | Privacy statement