Bedrijfsruimte Telfordstraat 13 Zwolle

Telfordstraat 13, 8013RL Zwolle

Ontvang updates voor Bedrijventerrein Marslanden-Zuid

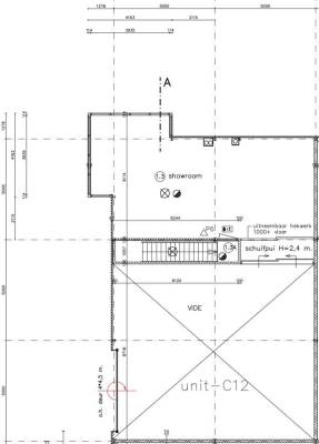
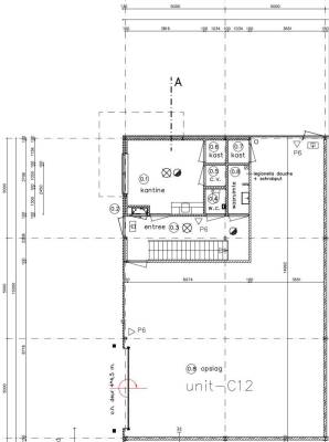
Dit bedrijfspand op het adres Telfordstraat 13 te Zwolle is breed inzetbaar als bedrijfsruimte. Het betreft hier bestaande bouw uit 2007. Een energielabel is niet beschikbaar. Het pand beschikt over één of meerdere voorzieningen waaronder lichtstraten, overheaddeuren, krachtstroom, betonvloer, heater, toilet, pantry, inbouwarmaturen en te openen ramen. Deze bedrijfsruimte heeft een oppervlakte van 211 m² en bestaat uit 2 bouwlagen.

Bekijk alle bedrijfspanden in Bedrijventerrein Marslanden-Zuid

Status bedrijfsobject Bedrijfsruimte Telfordstraat 13 Zwolle

Huidige status
Beschikbaar
Aangeboden sinds
8 januari 2026
Aanvaarding
In overleg

Eigendom en huurprijs bedrijfsruimte

Laatst bekende huurprijs
€ 1.600 per maand

Omgeving Bedrijfsruimte Telfordstraat 13 Zwolle

Ligging
Bedrijventerrein
Bereikbaarheid
Bushalte op 1500 m tot 2000 m, NS Intercitystation

Indeling en inrichting bedrijfspand

Oppervlakte
211 m²
Oppervlakte bedrijfshal
110 m²
Vrije hoogte
6,8 m

Voorzieningen in de buurt

Boodschappen2,4 km
Cafetaria0,3 km
Kinderdagverblijf1,7 km
Treinstation3,6 km
Alle voorzieningen in Bedrijventerrein Marslanden-Zuid

Binnenkijken bij Telfordstraat 13 te Zwolle

Meer meldingen in deze omgeving

112 melding
Zaterdag 10-1-2026 om 09:32
Ampèrestraat, Zwolle

Nieuw bedrijf
Januari 2026
Graham Bellstraat 12C, 8013PL Zwolle

Nieuw bedrijf
Januari 2026
Graham Bellstraat 12C, 8013PL Zwolle

112 melding
Woensdag 31-12-2025 om 01:43
Popovstraat, 8013RK Zwolle

112 melding
Woensdag 31-12-2025 om 00:27
Popovstraat, 8013RK Zwolle

112 melding
Dinsdag 30-12-2025 om 12:52
Marsweg, Zwolle

Nieuw bedrijf
December 2025
Eiffelstraat 18, 8013RT Zwolle

112 melding
Maandag 29-12-2025 om 03:53
Huub van Doornestraat, 8013NR Zwolle

Direct een e-mail ontvangen bij nieuwe meldingen in deze regio?

Meld je dan GRATIS aan voor de Oozo Alert service voor Bedrijventerrein Marslanden-Zuid

Instellen

Meer nieuws in Bedrijventerrein Marslanden-Zuid

Weten hoe eenvoudig het is om af te vallen? Zonder pillen en smeersels en zonder je in het zweet te werken!
Kijk op eenvoudig-afvallen.nl

© 2012 - 2026 OOZO.nl - info@oozo.nl - Gegevens verwijderen? | Disclaimer | Privacy statement