Woning 8 a 9512 Nieuwediep

8 a 9512, 9512SH Nieuwediep

Ontvang updates voor Nieuwediep

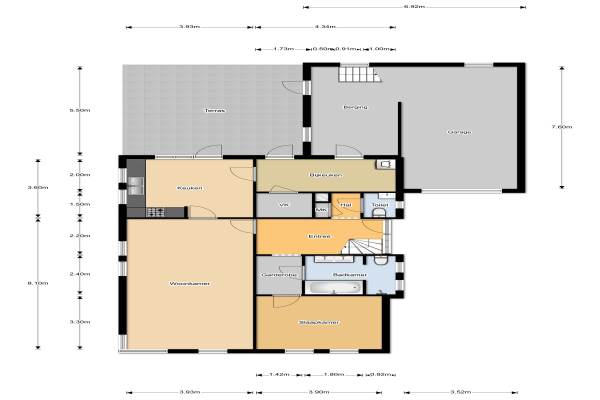
Het adres van deze woning uit 1998 is 8 a 9512 te Nieuwediep. Het pand heeft een oppervlakte van 146m² en een perceeloppervlakte van 3830m² en heeft 6 kamers kamers waarvan 4 slaapkamers. De geschatte waarde van deze woning is € 395.000.

Bekijk alle woningen in Nieuwediep

Gegevens van Eengezinswoning, vrijstaande woning

Bouwjaar
1998
Geschatte waarde
€ 395.000
Oppervlakte
146 m2
Inhoud
835 m3
Aantal kamers
6 kamers
Slaapkamers
4
Badkamers
1 badkamer en 1 apart toilet
Soort bouw
Bestaande bouw
Eigendomssituatie
Volle eigendom
Ligging
Aan water en landelijk gelegen
Tuin
Tuin rondom

Voorzieningen in de buurt

Boodschappen5,0 km
Grote supermarkt5,2 km
Cafetaria5,2 km
Restaurant1,5 km
Huisarts5,2 km
Ziekenhuis7,1 km
Kinderdagverblijf2,5 km
BSO2,5 km
Alle voorzieningen in Nieuwediep

Binnenkijken bij 8 a 9512 te Nieuwediep

Meer meldingen in deze omgeving

Binnenkijken bij
Dinsdag 2-12-2025
Bareveld 24, 9512SB Nieuwediep

Binnenkijken bij
Vrijdag 14-11-2025
Nieuwediep 87, 9512SE Nieuwediep

Binnenkijken bij
Woensdag 29-10-2025
Nieuwediep 18, 9512SH Nieuwediep

112 melding
Maandag 27-10-2025 om 11:00
Nieuwediep

112 melding
Maandag 27-10-2025 om 00:56
Nieuwediep

Binnenkijken bij
Donderdag 2-10-2025
Nieuwediep 65, 9512SE Nieuwediep

Binnenkijken bij
Vrijdag 19-9-2025
Nieuwediep 85, 9512SE Nieuwediep

Nieuw bedrijf
Juli 2025
Nieuwediep 42, 9512SJ Nieuwediep

Direct een e-mail ontvangen bij nieuwe meldingen in deze regio?

Meld je dan GRATIS aan voor de Oozo Alert service voor Nieuwediep

Instellen

Meer nieuws in Nieuwediep

Weten hoe eenvoudig het is om af te vallen? Zonder pillen en smeersels en zonder je in het zweet te werken!
Kijk op eenvoudig-afvallen.nl

© 2012 - 2026 OOZO.nl - info@oozo.nl - Gegevens verwijderen? | Disclaimer | Privacy statement