Woning Asserstraat 17 Rolde

Asserstraat 17, 9451AA Rolde

Ontvang updates voor Rolde

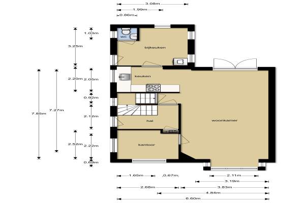
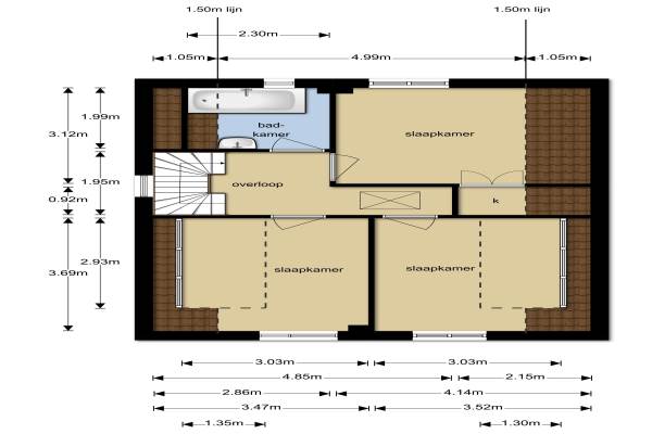
Het adres van deze woning uit 1935 is Asserstraat 17 te Rolde. Het pand heeft een oppervlakte van 102m² en een perceeloppervlakte van 900m² en heeft 5 kamers kamers waarvan 4 slaapkamers. De geschatte waarde van deze woning is € 299.000.

Bekijk alle woningen in Rolde

Gegevens van Eengezinswoning, vrijstaande woning

Bouwjaar
1935
Geschatte waarde
€ 299.000
Oppervlakte
102 m2
Inhoud
416 m3
Aantal kamers
5 kamers
Slaapkamers
4
Badkamers
1 badkamer
Soort bouw
Bestaande bouw
Eigendomssituatie
Volle eigendom
Ligging
Aan bosrand, aan drukke weg en in bosrijke omgeving
Tuin
Achtertuin en voortuin
Achtertuin
490 m² (35m diep en 14m breed)

Voorzieningen in de buurt

Boodschappen0,7 km
Grote supermarkt0,8 km
Cafetaria0,9 km
Restaurant0,8 km
Huisarts1,1 km
Ziekenhuis7,2 km
Kinderdagverblijf0,7 km
BSO0,7 km
Alle voorzieningen in Rolde

Binnenkijken bij Asserstraat 17 te Rolde

Meer meldingen in deze omgeving

112 melding
Dinsdag 6-1-2026 om 11:51
Koningin Wilhelminalaan, 9451AG Rolde

Nieuw bedrijf
Januari 2026
Lottinglaan 2, 9451KM Rolde

Binnenkijken bij
Woensdag 31-12-2025
Straatkampen 38, 9451BZ Rolde

Nieuw bedrijf
December 2025
Hoofdstraat 38, 9451BB Rolde

Nieuw bedrijf
December 2025
Grolloërstraat 40, 9451KC Rolde

112 melding
Zaterdag 20-12-2025 om 13:05
Molencamp, 9451GJ Rolde

112 melding
Zaterdag 20-12-2025 om 13:03
Molencamp, 9451GJ Rolde

Binnenkijken bij
Zaterdag 20-12-2025
Riegheide 28, 9451EJ Rolde

Direct een e-mail ontvangen bij nieuwe meldingen in deze regio?

Meld je dan GRATIS aan voor de Oozo Alert service voor Rolde

Instellen

Meer nieuws in Rolde

Weten hoe eenvoudig het is om af te vallen? Zonder pillen en smeersels en zonder je in het zweet te werken!
Kijk op eenvoudig-afvallen.nl

© 2012 - 2026 OOZO.nl - info@oozo.nl - Gegevens verwijderen? | Disclaimer | Privacy statement