Woning Nijlanderstraat 11 Rolde

Nijlanderstraat 11, 9451BL Rolde

Ontvang updates voor Rolde

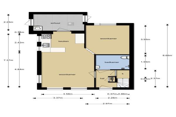
Het adres van deze woning uit 1985 is Nijlanderstraat 11 te Rolde. Het pand heeft een oppervlakte van 70m² en een perceeloppervlakte van 200m² en heeft 2 kamers kamers waarvan 1 slaapkamers. De geschatte waarde van deze woning is € 174.500.

Bekijk alle woningen in Rolde

Gegevens van Eengezinswoning, 2-onder-1-kapwoning

Bouwjaar
1985
Geschatte waarde
€ 174.500
Oppervlakte
70 m2
Inhoud
337 m3
Aantal kamers
2 kamers
Slaapkamers
1
Badkamers
1 badkamer
Soort bouw
Bestaande bouw
Eigendomssituatie
Volle eigendom
Ligging
In centrum en in bosrijke omgeving
Tuin
Voortuin, zijtuin en plaats

Voorzieningen in de buurt

Boodschappen0,7 km
Grote supermarkt0,8 km
Cafetaria0,9 km
Restaurant0,8 km
Huisarts1,1 km
Ziekenhuis7,2 km
Kinderdagverblijf0,7 km
BSO0,7 km
Alle voorzieningen in Rolde

Binnenkijken bij Nijlanderstraat 11 te Rolde

Meer meldingen in deze omgeving

Nieuw bedrijf
Januari 2026
Lottinglaan 2, 9451KM Rolde

Binnenkijken bij
Woensdag 31-12-2025
Straatkampen 38, 9451BZ Rolde

Nieuw bedrijf
December 2025
Hoofdstraat 38, 9451BB Rolde

Nieuw bedrijf
December 2025
Grolloërstraat 40, 9451KC Rolde

112 melding
Zaterdag 20-12-2025 om 13:05
Molencamp, 9451GJ Rolde

112 melding
Zaterdag 20-12-2025 om 13:03
Molencamp, 9451GJ Rolde

Binnenkijken bij
Zaterdag 20-12-2025
Riegheide 28, 9451EJ Rolde

Binnenkijken bij
Zaterdag 20-12-2025
Nijlanderstraat 6, 9451BM Rolde

Direct een e-mail ontvangen bij nieuwe meldingen in deze regio?

Meld je dan GRATIS aan voor de Oozo Alert service voor Rolde

Instellen

Meer nieuws in Rolde

Weten hoe eenvoudig het is om af te vallen? Zonder pillen en smeersels en zonder je in het zweet te werken!
Kijk op eenvoudig-afvallen.nl

© 2012 - 2026 OOZO.nl - info@oozo.nl - Gegevens verwijderen? | Disclaimer | Privacy statement