Woning Bilderdammerweg 51 Kudelstaart

Bilderdammerweg 51, 1433HE Kudelstaart

Ontvang updates voor Kudelstaart

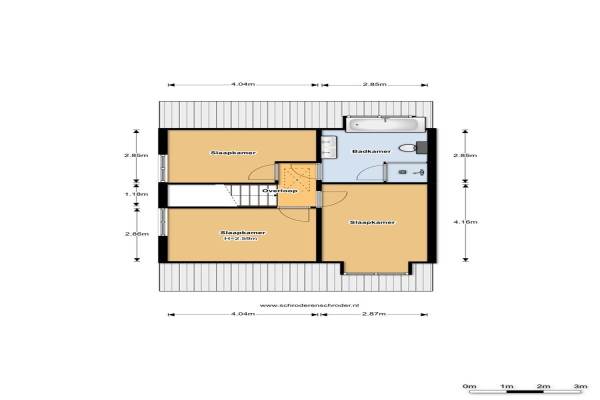
Het adres van deze woning uit 2005 is Bilderdammerweg 51 te Kudelstaart. Het pand heeft een oppervlakte van 122m² en een perceeloppervlakte van 420m² en heeft 4 kamers kamers waarvan 3 slaapkamers. De geschatte waarde van deze woning is € 569.000.

Bekijk alle woningen in Kudelstaart

Gegevens van Eengezinswoning, 2-onder-1-kapwoning

Bouwjaar
2005
Geschatte waarde
€ 569.000
Oppervlakte
122 m2
Inhoud
539 m3
Aantal kamers
4 kamers
Slaapkamers
3
Badkamers
1 badkamer en 1 apart toilet
Soort bouw
Bestaande bouw
Eigendomssituatie
Volle eigendom
Ligging
In woonwijk en vrij uitzicht
Tuin
Achtertuin en voortuin
Achtertuin
94 m² (10m diep en 16m breed)

Voorzieningen in de buurt

Boodschappen0,8 km
Grote supermarkt0,9 km
Cafetaria0,8 km
Restaurant0,7 km
Huisarts0,8 km
Ziekenhuis5,2 km
Kinderdagverblijf0,5 km
BSO0,6 km
Alle voorzieningen in Kudelstaart

Binnenkijken bij Bilderdammerweg 51 te Kudelstaart

Meer meldingen in deze omgeving

112 melding
Dinsdag 11-11-2025 om 17:59
Spilstraat, 1433HD Kudelstaart

112 melding
Dinsdag 11-11-2025 om 17:57
Mijnsherenweg, Kudelstaart

Binnenkijken bij
Dinsdag 11-11-2025
Gaffelstraat 22, 1433SJ Kudelstaart

112 melding
Dinsdag 11-11-2025 om 12:49
Leeghwaterstraat, Kudelstaart

Binnenkijken bij
Dinsdag 11-11-2025
Herenweg 80, 1433HB Kudelstaart

Binnenkijken bij
Dinsdag 11-11-2025
Copierstraat 56, 1433NT Kudelstaart

112 melding
Dinsdag 11-11-2025 om 11:19
Mijnsherenweg, 1433AS Kudelstaart

Binnenkijken bij
Dinsdag 11-11-2025
Moslaan 40, 1433WJ Kudelstaart

Direct een e-mail ontvangen bij nieuwe meldingen in deze regio?

Meld je dan GRATIS aan voor de Oozo Alert service voor Kudelstaart

Instellen

Meer nieuws in Kudelstaart

Weten hoe eenvoudig het is om af te vallen? Zonder pillen en smeersels en zonder je in het zweet te werken!
Kijk op eenvoudig-afvallen.nl

© 2012 - 2025 OOZO.nl - info@oozo.nl - Gegevens verwijderen? | Disclaimer | Privacy statement