Woning Tubantenstraat 40A Aalten

Tubantenstraat 40A, 7122CS Aalten

Ontvang updates voor Aalten-kern Noord/Noordoost

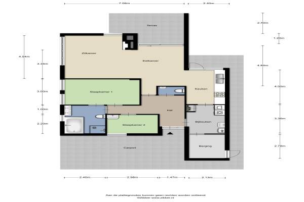
Het adres van deze woning uit 1977 is Tubantenstraat 40A te Aalten. Het pand heeft een oppervlakte van 93m² en een perceeloppervlakte van 597m² en heeft 3 kamers kamers waarvan 2 slaapkamers. De geschatte waarde van deze woning is € 285.000.

Bekijk alle woningen in Aalten-kern Noord/Noordoost

Gegevens van Bungalow, vrijstaande woning

Bouwjaar
1977
Geschatte waarde
€ 285.000
Oppervlakte
93 m2
Inhoud
345 m3
Aantal kamers
3 kamers
Slaapkamers
2
Badkamers
1 apart toilet
Soort bouw
Bestaande bouw
Eigendomssituatie
Volle eigendom
Ligging
In woonwijk en open ligging
Tuin
Achtertuin, voortuin en zijtuin

Voorzieningen in de buurt

Boodschappen0,5 km
Grote supermarkt0,8 km
Cafetaria0,7 km
Restaurant0,5 km
Huisarts0,7 km
Ziekenhuis11,1 km
Kinderdagverblijf0,6 km
BSO0,5 km
Alle voorzieningen in Aalten-kern Noord/Noordoost

Binnenkijken bij Tubantenstraat 40A te Aalten

Meer meldingen in deze omgeving

112 melding
Dinsdag 25-11-2025 om 08:20
De Hare, Aalten

112 melding
Vrijdag 21-11-2025 om 22:21
Patrimoniumstraat, Aalten

112 melding
Vrijdag 21-11-2025 om 22:21
Patrimoniumstraat, Aalten

112 melding
Vrijdag 21-11-2025 om 22:16
Patrimoniumstraat, Aalten

Binnenkijken bij
Dinsdag 11-11-2025
Wilhelminastraat 21, 7121BV Aalten

Binnenkijken bij
Dinsdag 11-11-2025
Manschotplein 63, 7121BL Aalten

112 melding
Zaterdag 1-11-2025 om 15:58
Vlierbeslaan, 7121BN Aalten

Binnenkijken bij
Zaterdag 11-10-2025
Haartsestraat 78, 7121CZ Aalten

Direct een e-mail ontvangen bij nieuwe meldingen in deze regio?

Meld je dan GRATIS aan voor de Oozo Alert service voor Aalten-kern Noord/Noordoost

Instellen

Meer nieuws in Aalten-kern Noord/Noordoost

Weten hoe eenvoudig het is om af te vallen? Zonder pillen en smeersels en zonder je in het zweet te werken!
Kijk op eenvoudig-afvallen.nl

© 2012 - 2025 OOZO.nl - info@oozo.nl - Gegevens verwijderen? | Disclaimer | Privacy statement