Woning Bodenvoor 22 Aalten

Bodenvoor 22, 7121CL Aalten

Ontvang updates voor Aalten-kern Noord/Noordoost

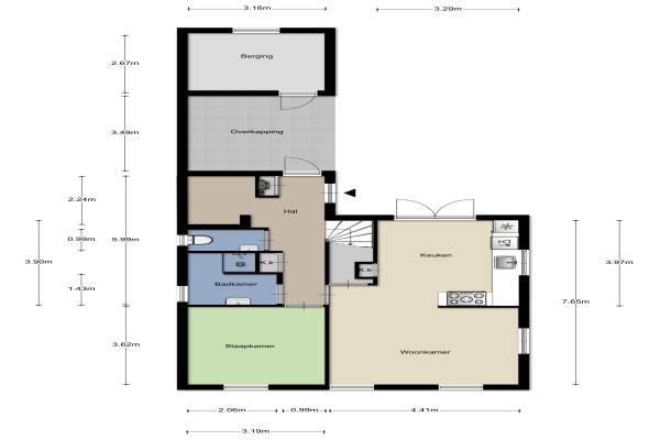
Het adres van deze woning uit 1903 is Bodenvoor 22 te Aalten. Het pand heeft een oppervlakte van 83m² en een perceeloppervlakte van 306m² en heeft 3 kamers kamers waarvan 1 slaapkamers. De geschatte waarde van deze woning is € 245.000.

Bekijk alle woningen in Aalten-kern Noord/Noordoost

Gegevens van Eengezinswoning, vrijstaande woning

Bouwjaar
1903
Geschatte waarde
€ 245.000
Oppervlakte
83 m2
Inhoud
288 m3
Aantal kamers
3 kamers
Slaapkamers
1
Badkamers
2 badkamers en 1 apart toilet
Soort bouw
Bestaande bouw
Eigendomssituatie
Volle eigendom
Ligging
Aan rustige weg en in centrum
Tuin
Achtertuin
Achtertuin
140 m² (14m diep en 10m breed)

Voorzieningen in de buurt

Boodschappen0,5 km
Grote supermarkt0,8 km
Cafetaria0,7 km
Restaurant0,5 km
Huisarts0,7 km
Ziekenhuis11,1 km
Kinderdagverblijf0,6 km
BSO0,5 km
Alle voorzieningen in Aalten-kern Noord/Noordoost

Binnenkijken bij Bodenvoor 22 te Aalten

Meer meldingen in deze omgeving

Binnenkijken bij
Dinsdag 11-11-2025
Wilhelminastraat 21, 7121BV Aalten

Binnenkijken bij
Dinsdag 11-11-2025
Manschotplein 63, 7121BL Aalten

112 melding
Zaterdag 1-11-2025 om 15:58
Vlierbeslaan, 7121BN Aalten

Binnenkijken bij
Zaterdag 11-10-2025
Haartsestraat 78, 7121CZ Aalten

Binnenkijken bij
Vrijdag 10-10-2025
Haartsestraat 60, 7121CZ Aalten

Binnenkijken bij
Donderdag 9-10-2025
Bredevoortsestraatweg 51, 7121BB Aalten

112 melding
Zaterdag 4-10-2025 om 18:01
Oranjelaan, 7121CA Aalten

Binnenkijken bij
Woensdag 1-10-2025
Saksenstraat 29, 7122CK Aalten

Direct een e-mail ontvangen bij nieuwe meldingen in deze regio?

Meld je dan GRATIS aan voor de Oozo Alert service voor Aalten-kern Noord/Noordoost

Instellen

Meer nieuws in Aalten-kern Noord/Noordoost

Weten hoe eenvoudig het is om af te vallen? Zonder pillen en smeersels en zonder je in het zweet te werken!
Kijk op eenvoudig-afvallen.nl

© 2012 - 2025 OOZO.nl - info@oozo.nl - Gegevens verwijderen? | Disclaimer | Privacy statement