Woning Koopmanstraat 22 Aalten

Koopmanstraat 22, 7121VT Aalten

Ontvang updates voor Aalten-kern Zuid 1

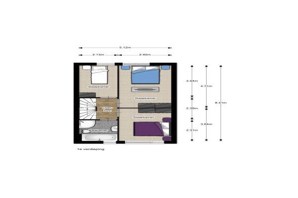
Het adres van deze woning uit 1984 is Koopmanstraat 22 te Aalten. Het pand heeft een oppervlakte van 128m² en een perceeloppervlakte van 332m² en heeft 5 kamers kamers waarvan 4 slaapkamers. De geschatte waarde van deze woning is € 240.000.

Bekijk alle woningen in Aalten-kern Zuid 1

Gegevens van Eengezinswoning, 2-onder-1-kapwoning

Bouwjaar
1984
Geschatte waarde
€ 240.000
Oppervlakte
128 m2
Inhoud
510 m3
Aantal kamers
5 kamers
Slaapkamers
4
Badkamers
1 badkamer en 1 apart toilet
Soort bouw
Bestaande bouw
Eigendomssituatie
Volle eigendom
Ligging
Aan rustige weg en in woonwijk
Tuin
Achtertuin en voortuin
Achtertuin
179 m² (21m diep en 8,5m breed)

Voorzieningen in de buurt

Boodschappen0,6 km
Grote supermarkt1,2 km
Cafetaria0,4 km
Restaurant0,7 km
Huisarts0,8 km
Ziekenhuis12,4 km
Kinderdagverblijf0,5 km
BSO0,5 km
Alle voorzieningen in Aalten-kern Zuid 1

Binnenkijken bij Koopmanstraat 22 te Aalten

Meer meldingen in deze omgeving

Nieuw bedrijf
December 2025
Broekstraat 24, 7122LC Aalten

Nieuw bedrijf
December 2025
Broekstraat 24, 7122LC Aalten

Nieuw bedrijf
December 2025
Nijverheidsweg 28, 7122AB Aalten

Binnenkijken bij
Zaterdag 6-12-2025
Smitskamp 9, 7121HM Aalten

Faillissement
Vrijdag 5-12-2025
Tweede Broekdijk 1, 7122LB Aalten

Faillissement
Vrijdag 5-12-2025
Tweede Broekdijk 1, 7122LB Aalten

Nieuw bedrijf
December 2025
Broekstraat 34, 7122LC Aalten

Nieuw bedrijf
December 2025
Broekstraat 34, 7122LC Aalten

Direct een e-mail ontvangen bij nieuwe meldingen in deze regio?

Meld je dan GRATIS aan voor de Oozo Alert service voor Aalten-kern Zuid 1

Instellen

Meer nieuws in Aalten-kern Zuid 1

Weten hoe eenvoudig het is om af te vallen? Zonder pillen en smeersels en zonder je in het zweet te werken!
Kijk op eenvoudig-afvallen.nl

© 2012 - 2025 OOZO.nl - info@oozo.nl - Gegevens verwijderen? | Disclaimer | Privacy statement