Woning Kuipersweg 40 Buitenpost

Kuipersweg 40, 9285SV Buitenpost

Ontvang updates voor Buitenpost

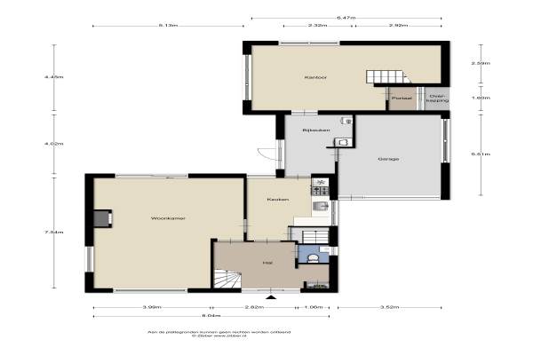
Het adres van deze woning uit 1979 is Kuipersweg 40 te Buitenpost. Het pand heeft een oppervlakte van 194m² en een perceeloppervlakte van 419m² en heeft 6 kamers kamers waarvan 6 slaapkamers. De geschatte waarde van deze woning is € 249.500.

Bekijk alle woningen in Buitenpost

Gegevens van Eengezinswoning, vrijstaande woning

Bouwjaar
1979
Geschatte waarde
€ 249.500
Oppervlakte
194 m2
Inhoud
796 m3
Aantal kamers
6 kamers
Slaapkamers
6
Badkamers
1 badkamer
Soort bouw
Bestaande bouw
Eigendomssituatie
Volle eigendom
Ligging
Aan drukke weg en in centrum
Tuin
Achtertuin en voortuin
Achtertuin
144 m² (15m diep en 10m breed)

Voorzieningen in de buurt

Boodschappen0,7 km
Grote supermarkt0,9 km
Cafetaria0,9 km
Restaurant0,8 km
Huisarts0,9 km
Ziekenhuis21,1 km
Kinderdagverblijf0,6 km
BSO0,5 km
Alle voorzieningen in Buitenpost

Binnenkijken bij Kuipersweg 40 te Buitenpost

Meer meldingen in deze omgeving

Binnenkijken bij
Zondag 25-1-2026
Jeltingalaan 66, 9285WL Buitenpost

Binnenkijken bij
Zondag 25-1-2026
Ruiterstraat 28, 9285RX Buitenpost

Binnenlands nieuws
Vrijdag 23-1-2026
Buitenpost

Binnenlands nieuws
Donderdag 22-1-2026
Buitenpost

Binnenlands nieuws
Woensdag 21-1-2026
Buitenpost

Nieuw bedrijf
Januari 2026
Mejontsmastraat 4, 9285RE Buitenpost

Nieuw bedrijf
Januari 2026
De Hoefslag 13, 9285RT Buitenpost

Nieuw bedrijf
Januari 2026
Bernhardlaan 39, 9285TZ Buitenpost

Direct een e-mail ontvangen bij nieuwe meldingen in deze regio?

Meld je dan GRATIS aan voor de Oozo Alert service voor Buitenpost

Instellen

Meer nieuws in Buitenpost

Weten hoe eenvoudig het is om af te vallen? Zonder pillen en smeersels en zonder je in het zweet te werken!
Kijk op eenvoudig-afvallen.nl

© 2012 - 2026 OOZO.nl - info@oozo.nl - Gegevens verwijderen? | Disclaimer | Privacy statement