Woning Bouwlust 50 Rhoon

Bouwlust 50, 3162SB Rhoon

Ontvang updates voor De Eilanden

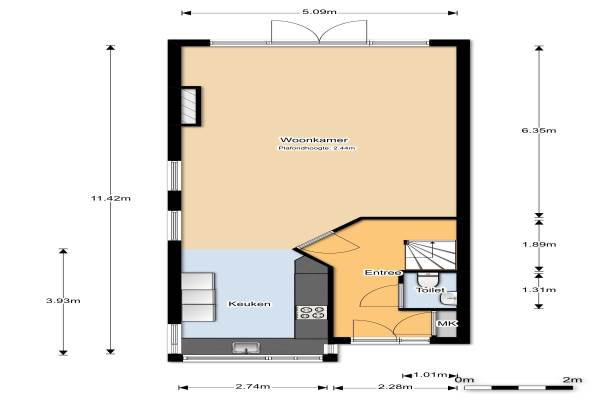
Het adres van deze woning uit 2004 is Bouwlust 50 te Rhoon. Het pand heeft een oppervlakte van 145m² en een perceeloppervlakte van 183m² en heeft 7 kamers kamers waarvan 6 slaapkamers. De geschatte waarde van deze woning is € 374.500.

Bekijk alle woningen in De Eilanden

Gegevens van Eengezinswoning, hoekwoning

Bouwjaar
2004
Geschatte waarde
€ 374.500
Oppervlakte
145 m2
Inhoud
467 m3
Aantal kamers
7 kamers
Slaapkamers
6
Badkamers
2 aparte toiletten
Soort bouw
Bestaande bouw
Eigendomssituatie
Volle eigendom
Ligging
Aan rustige weg, in woonwijk en beschutte ligging
Tuin
Achtertuin, voortuin, zijtuin en zonneterras
Achtertuin
59 m² (9m diep en 6,5m breed)

Voorzieningen in de buurt

Boodschappen0,9 km
Grote supermarkt1,0 km
Cafetaria1,0 km
Restaurant1,0 km
Huisarts1,4 km
Ziekenhuis2,8 km
Kinderdagverblijf1,0 km
BSO1,0 km
Alle voorzieningen in De Eilanden

Binnenkijken bij Bouwlust 50 te Rhoon

Meer meldingen in deze omgeving

112 melding
Zondag 9-11-2025 om 04:34
Kwartslaan, 3162RD Rhoon

112 melding
Zaterdag 8-11-2025 om 02:32
Kroon, 3162VD Rhoon

112 melding
Dinsdag 4-11-2025 om 07:15
Barnsteenhof, 3162RC Rhoon

112 melding
Donderdag 30-10-2025 om 15:33
Kollet, 3162VC Rhoon

112 melding
Woensdag 29-10-2025 om 20:11
Onyxlaan, 3162TC Rhoon

112 melding
Woensdag 29-10-2025 om 20:11
Onyxlaan, 3162TC Rhoon

Binnenkijken bij
Woensdag 29-10-2025
Bouwlust 63, 3162SB Rhoon

Nieuw bedrijf
Oktober 2025
Bouwlust 20, 3162SB Rhoon

Direct een e-mail ontvangen bij nieuwe meldingen in deze regio?

Meld je dan GRATIS aan voor de Oozo Alert service voor De Eilanden

Instellen

Meer nieuws in De Eilanden

Weten hoe eenvoudig het is om af te vallen? Zonder pillen en smeersels en zonder je in het zweet te werken!
Kijk op eenvoudig-afvallen.nl

© 2012 - 2025 OOZO.nl - info@oozo.nl - Gegevens verwijderen? | Disclaimer | Privacy statement