Woning Molenbuurt 23 Alkmaar

Molenbuurt 23, 1811KD Alkmaar

Ontvang updates voor Binnenstad-West

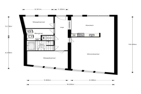
Het adres van deze woning uit 2003 is Molenbuurt 23 te Alkmaar. Het pand heeft een oppervlakte van 82m² en heeft 3 kamers kamers waarvan 2 slaapkamers. De geschatte waarde van deze woning is € 249.500.

Bekijk alle woningen in Binnenstad-West

Gegevens van Bovenwoning (appartement)

Bouwjaar
2003
Geschatte waarde
€ 249.500
Oppervlakte
82 m2
Inhoud
266 m3
Aantal kamers
3 kamers
Slaapkamers
2
Soort bouw
Bestaande bouw
Eigendomssituatie
Volle eigendom
Ligging
Aan park, in centrum en vrij uitzicht
Tuin
Zonneterras

Voorzieningen in de buurt

Boodschappen0,1 km
Grote supermarkt0,3 km
Cafetaria0,1 km
Restaurant0,1 km
Huisarts0,5 km
Ziekenhuis1,0 km
Kinderdagverblijf0,4 km
BSO0,5 km
Alle voorzieningen in Binnenstad-West

Binnenkijken bij Molenbuurt 23 te Alkmaar

Meer meldingen in deze omgeving

112 melding
Dinsdag 14-10-2025 om 16:33
Doelenveld, 1811LZ Alkmaar

Binnenkijken bij
Zondag 12-10-2025
Achterstraat 12, 1811LJ Alkmaar

112 melding
Vrijdag 10-10-2025 om 11:10
Langestraat, Alkmaar

Binnenkijken bij
Vrijdag 10-10-2025
Oudegracht 269, 1811CH Alkmaar

Binnenkijken bij
Vrijdag 10-10-2025
Gedempte Baansloot 28, 1811DJ Alkmaar

Binnenkijken bij
Donderdag 9-10-2025
Langestraat 86F, 1811JK Alkmaar

Binnenkijken bij
Donderdag 9-10-2025
Koningsweg 16L, 1811LM Alkmaar

Binnenkijken bij
Donderdag 9-10-2025
Achterstraat 45A, 1811LH Alkmaar

Direct een e-mail ontvangen bij nieuwe meldingen in deze regio?

Meld je dan GRATIS aan voor de Oozo Alert service voor Binnenstad-West

Instellen

Meer nieuws in Binnenstad-West

Weten hoe eenvoudig het is om af te vallen? Zonder pillen en smeersels en zonder je in het zweet te werken!
Kijk op eenvoudig-afvallen.nl

© 2012 - 2025 OOZO.nl - info@oozo.nl - Gegevens verwijderen? | Disclaimer | Privacy statement