Woning Stationstraat 46 Alkmaar

Stationstraat 46, 1815TC Alkmaar

Ontvang updates voor Spoorbuurt

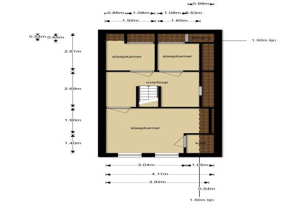
Het adres van deze woning uit 1905 is Stationstraat 46 te Alkmaar. Het pand heeft een oppervlakte van 77m² en een perceeloppervlakte van 71m² en heeft 4 kamers kamers waarvan 3 slaapkamers. De geschatte waarde van deze woning is € 159.500.

Bekijk alle woningen in Spoorbuurt

Gegevens van Eengezinswoning, tussenwoning

Bouwjaar
1905
Geschatte waarde
€ 159.500
Oppervlakte
77 m2
Inhoud
220 m3
Aantal kamers
4 kamers
Slaapkamers
3
Badkamers
1 badkamer
Soort bouw
Bestaande bouw
Eigendomssituatie
Volle eigendom
Tuin
Patio/atrium

Voorzieningen in de buurt

Boodschappen0,2 km
Grote supermarkt0,5 km
Cafetaria0,2 km
Restaurant0,2 km
Huisarts1,0 km
Ziekenhuis1,4 km
Kinderdagverblijf0,3 km
BSO0,3 km
Alle voorzieningen in Spoorbuurt

Binnenkijken bij Stationstraat 46 te Alkmaar

Meer meldingen in deze omgeving

Nieuw bedrijf
Maart 2026
Stationsweg 37B, 1815CB Alkmaar

112 melding
Maandag 9-3-2026 om 02:33
Stationsweg, Alkmaar

112 melding
Woensdag 4-3-2026 om 17:57
Eendrachtsstraat, 1815SL Alkmaar

112 melding
Maandag 2-3-2026 om 18:01
Mallegatsplein, 1815AG Alkmaar

Binnenkijken bij
Maandag 2-3-2026
Helderseweg 15D4, 1815AB Alkmaar

112 melding
Zondag 1-3-2026 om 18:11
Mallegatsplein, 1815AG Alkmaar

112 melding
Zondag 1-3-2026 om 18:11
Mallegatsplein, 1815AG Alkmaar

112 melding
Zaterdag 28-2-2026 om 00:48
Kinheimstraat, Alkmaar

Direct een e-mail ontvangen bij nieuwe meldingen in deze regio?

Meld je dan GRATIS aan voor de Oozo Alert service voor Spoorbuurt

Instellen

Meer nieuws in Spoorbuurt

Weten hoe eenvoudig het is om af te vallen? Zonder pillen en smeersels en zonder je in het zweet te werken!
Kijk op eenvoudig-afvallen.nl

© 2012 - 2026 OOZO.nl - info@oozo.nl - Gegevens verwijderen? | Disclaimer | Privacy statement