Woning Buizerdweg 17 Alkmaar

Buizerdweg 17, 1826GK Alkmaar

Ontvang updates voor De Horn-Noord

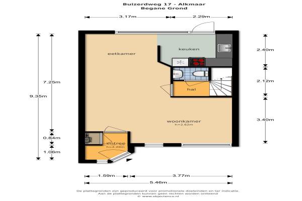
Het adres van deze woning uit 1980 is Buizerdweg 17 te Alkmaar. Het pand heeft een oppervlakte van 86m² en een perceeloppervlakte van 155m² en heeft 5 kamers kamers waarvan 3 slaapkamers. De geschatte waarde van deze woning is € 199.000.

Bekijk alle woningen in De Horn-Noord

Gegevens van Eengezinswoning, geschakelde woning

Bouwjaar
1980
Geschatte waarde
€ 199.000
Oppervlakte
86 m2
Inhoud
336 m3
Aantal kamers
5 kamers
Slaapkamers
3
Badkamers
1 badkamer en 1 apart toilet
Soort bouw
Bestaande bouw
Eigendomssituatie
Volle eigendom
Ligging
Aan rustige weg en in woonwijk
Tuin
Achtertuin en voortuin
Achtertuin
56 m² (11m diep en 5,8m breed)

Voorzieningen in de buurt

Boodschappen0,6 km
Grote supermarkt0,7 km
Cafetaria0,8 km
Restaurant1,2 km
Huisarts0,9 km
Ziekenhuis5,3 km
Kinderdagverblijf0,3 km
BSO0,5 km
Alle voorzieningen in De Horn-Noord

Binnenkijken bij Buizerdweg 17 te Alkmaar

Meer meldingen in deze omgeving

Nieuw bedrijf
November 2025
Albatrosweg 31, 1826KE Alkmaar

Nieuw bedrijf
November 2025
Sperwerstraat 23N, 1826KL Alkmaar

Binnenkijken bij
Vrijdag 14-11-2025
Albatrosweg 9, 1826KE Alkmaar

112 melding
Dinsdag 11-11-2025 om 23:18
Barmsijsstraat, Alkmaar

Binnenkijken bij
Dinsdag 11-11-2025
Kwikstaartlaan 21, 1826GB Alkmaar

Binnenkijken bij
Dinsdag 11-11-2025
Plevierstraat 35, 1826HS Alkmaar

Binnenkijken bij
Dinsdag 11-11-2025
Waterhoenstraat 9, 1826JK Alkmaar

Nieuw bedrijf
November 2025
Arendsweg 80, 1826JE Alkmaar

Direct een e-mail ontvangen bij nieuwe meldingen in deze regio?

Meld je dan GRATIS aan voor de Oozo Alert service voor De Horn-Noord

Instellen

Meer nieuws in De Horn-Noord

Weten hoe eenvoudig het is om af te vallen? Zonder pillen en smeersels en zonder je in het zweet te werken!
Kijk op eenvoudig-afvallen.nl

© 2012 - 2025 OOZO.nl - info@oozo.nl - Gegevens verwijderen? | Disclaimer | Privacy statement