Woning Zandkreek 52 Alkmaar

Zandkreek 52, 1826CR Alkmaar

Ontvang updates voor De Horn-Zuid

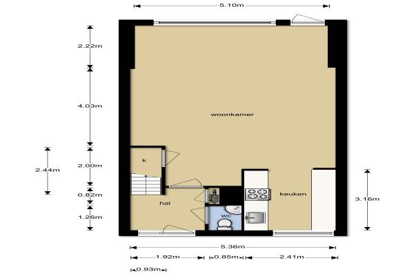
Het adres van deze woning uit 1981 is Zandkreek 52 te Alkmaar. Het pand heeft een oppervlakte van 126m² en een perceeloppervlakte van 157m² en heeft 5 kamers kamers waarvan 4 slaapkamers. De geschatte waarde van deze woning is € 229.000.

Bekijk alle woningen in De Horn-Zuid

Gegevens van Eengezinswoning, tussenwoning

Bouwjaar
1981
Geschatte waarde
€ 229.000
Oppervlakte
126 m2
Inhoud
428 m3
Aantal kamers
5 kamers
Slaapkamers
4
Badkamers
1 badkamer en 1 apart toilet
Soort bouw
Bestaande bouw
Eigendomssituatie
Gemeentelijk eigendom belast met erfpacht (einddatum erfpacht: 01-03-2029)
Ligging
In woonwijk
Tuin
Achtertuin en voortuin
Achtertuin
50 m² (9,5m diep en 5,3m breed)

Voorzieningen in de buurt

Boodschappen0,7 km
Grote supermarkt0,8 km
Cafetaria0,7 km
Restaurant0,7 km
Huisarts0,5 km
Ziekenhuis4,5 km
Kinderdagverblijf0,4 km
BSO0,6 km
Alle voorzieningen in De Horn-Zuid

Binnenkijken bij Zandkreek 52 te Alkmaar

Meer meldingen in deze omgeving

112 melding
Vrijdag 5-12-2025 om 10:57
Jonkstraat, Alkmaar

112 melding
Woensdag 3-12-2025 om 12:45
Laan van Straatsburg, 1826BZ Alkmaar

112 melding
Woensdag 3-12-2025 om 12:43
Laan van Straatsburg, 1826BZ Alkmaar

112 melding
Maandag 1-12-2025 om 15:23
Wielingenweg, Alkmaar

112 melding
Maandag 1-12-2025 om 15:23
Wielingenweg, Alkmaar

112 melding
Zondag 30-11-2025 om 17:04
Schokkerhof, Alkmaar

112 melding
Zondag 30-11-2025 om 17:04
Schokkerhof, Alkmaar

112 melding
Vrijdag 28-11-2025 om 10:57
Brigantijn, 1826BB Alkmaar

Direct een e-mail ontvangen bij nieuwe meldingen in deze regio?

Meld je dan GRATIS aan voor de Oozo Alert service voor De Horn-Zuid

Instellen

Meer nieuws in De Horn-Zuid

Weten hoe eenvoudig het is om af te vallen? Zonder pillen en smeersels en zonder je in het zweet te werken!
Kijk op eenvoudig-afvallen.nl

© 2012 - 2025 OOZO.nl - info@oozo.nl - Gegevens verwijderen? | Disclaimer | Privacy statement