Woning Wielingenweg 242 Alkmaar

Wielingenweg 242, 1826BV Alkmaar

Ontvang updates voor De Horn-Zuid

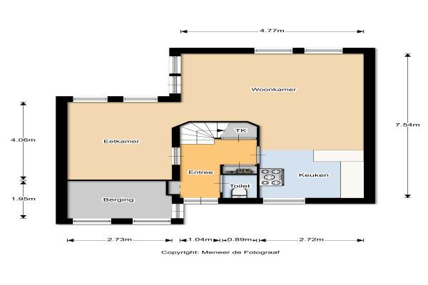
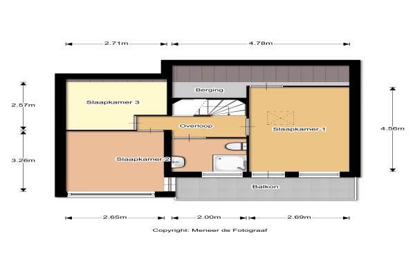
Het adres van deze woning uit 1979 is Wielingenweg 242 te Alkmaar. Het pand heeft een oppervlakte van 75m² en een perceeloppervlakte van 133m² en heeft 4 kamers kamers waarvan 3 slaapkamers. De geschatte waarde van deze woning is € 179.500.

Bekijk alle woningen in De Horn-Zuid

Gegevens van Eengezinswoning, tussenwoning

Bouwjaar
1979
Geschatte waarde
€ 179.500
Oppervlakte
75 m2
Inhoud
290 m3
Aantal kamers
4 kamers
Slaapkamers
3
Badkamers
1 badkamer en 1 apart toilet
Soort bouw
Bestaande bouw
Eigendomssituatie
Gemeentelijk eigendom belast met erfpacht
Ligging
In woonwijk en beschutte ligging
Tuin
Achtertuin en zonneterras
Achtertuin
68 m² (8,5m diep en 8m breed)

Voorzieningen in de buurt

Boodschappen0,7 km
Grote supermarkt0,8 km
Cafetaria0,7 km
Restaurant0,7 km
Huisarts0,5 km
Ziekenhuis4,5 km
Kinderdagverblijf0,4 km
BSO0,6 km
Alle voorzieningen in De Horn-Zuid

Binnenkijken bij Wielingenweg 242 te Alkmaar

Meer meldingen in deze omgeving

112 melding
Maandag 16-2-2026 om 02:25
Punterstraat, 1826CJ Alkmaar

Binnenkijken bij
Maandag 16-2-2026
Arkplein 87, 1826DL Alkmaar

112 melding
Zondag 15-2-2026 om 13:33
Punterstraat, 1826CJ Alkmaar

112 melding
Zondag 15-2-2026 om 03:05
Schoenerstraat, 1826CH Alkmaar

Binnenkijken bij
Donderdag 12-2-2026
Grevelingen 86, 1826AP Alkmaar

112 melding
Donderdag 12-2-2026 om 02:16
Zandkreek, Alkmaar

112 melding
Woensdag 11-2-2026 om 23:20
Vliestroom, Alkmaar

Binnenkijken bij
Dinsdag 10-2-2026
Vliestroom 32, 1826AJ Alkmaar

Direct een e-mail ontvangen bij nieuwe meldingen in deze regio?

Meld je dan GRATIS aan voor de Oozo Alert service voor De Horn-Zuid

Instellen

Meer nieuws in De Horn-Zuid

Weten hoe eenvoudig het is om af te vallen? Zonder pillen en smeersels en zonder je in het zweet te werken!
Kijk op eenvoudig-afvallen.nl

© 2012 - 2026 OOZO.nl - info@oozo.nl - Gegevens verwijderen? | Disclaimer | Privacy statement