Woning Schouwstraat 6 Alkmaar

Schouwstraat 6, 1826AW Alkmaar

Ontvang updates voor De Horn-Zuid

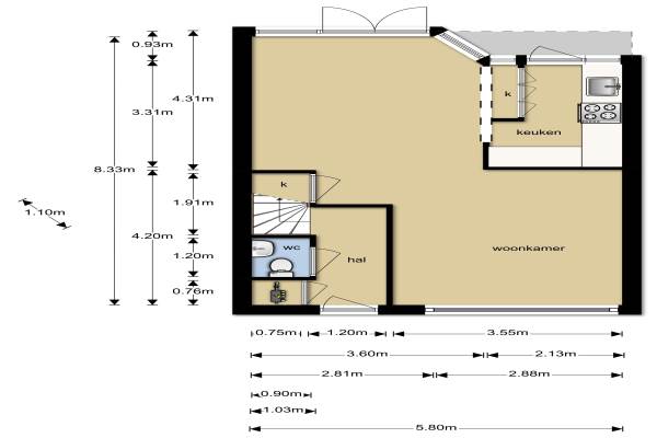
Het adres van deze woning uit 1979 is Schouwstraat 6 te Alkmaar. Het pand heeft een oppervlakte van 103m² en een perceeloppervlakte van 133m² en heeft 5 kamers kamers waarvan 4 slaapkamers. De geschatte waarde van deze woning is € 229.500.

Bekijk alle woningen in De Horn-Zuid

Gegevens van Eengezinswoning, tussenwoning

Bouwjaar
1979
Geschatte waarde
€ 229.500
Oppervlakte
103 m2
Inhoud
350 m3
Aantal kamers
5 kamers
Slaapkamers
4
Badkamers
1 badkamer en 1 apart toilet
Soort bouw
Bestaande bouw
Eigendomssituatie
Volle eigendom
Ligging
In woonwijk
Tuin
Achtertuin en voortuin
Achtertuin
66 m² (11m diep en 6m breed)

Voorzieningen in de buurt

Boodschappen0,7 km
Grote supermarkt0,8 km
Cafetaria0,7 km
Restaurant0,7 km
Huisarts0,5 km
Ziekenhuis4,5 km
Kinderdagverblijf0,4 km
BSO0,6 km
Alle voorzieningen in De Horn-Zuid

Binnenkijken bij Schouwstraat 6 te Alkmaar

Meer meldingen in deze omgeving

112 melding
Vrijdag 5-12-2025 om 10:57
Jonkstraat, Alkmaar

112 melding
Woensdag 3-12-2025 om 12:45
Laan van Straatsburg, 1826BZ Alkmaar

112 melding
Woensdag 3-12-2025 om 12:43
Laan van Straatsburg, 1826BZ Alkmaar

112 melding
Maandag 1-12-2025 om 15:23
Wielingenweg, Alkmaar

112 melding
Maandag 1-12-2025 om 15:23
Wielingenweg, Alkmaar

112 melding
Zondag 30-11-2025 om 17:04
Schokkerhof, Alkmaar

112 melding
Zondag 30-11-2025 om 17:04
Schokkerhof, Alkmaar

112 melding
Vrijdag 28-11-2025 om 10:57
Brigantijn, 1826BB Alkmaar

Direct een e-mail ontvangen bij nieuwe meldingen in deze regio?

Meld je dan GRATIS aan voor de Oozo Alert service voor De Horn-Zuid

Instellen

Meer nieuws in De Horn-Zuid

Weten hoe eenvoudig het is om af te vallen? Zonder pillen en smeersels en zonder je in het zweet te werken!
Kijk op eenvoudig-afvallen.nl

© 2012 - 2025 OOZO.nl - info@oozo.nl - Gegevens verwijderen? | Disclaimer | Privacy statement