Woning Arkplein 79 Alkmaar

Arkplein 79, 1826DL Alkmaar

Ontvang updates voor De Horn-Zuid

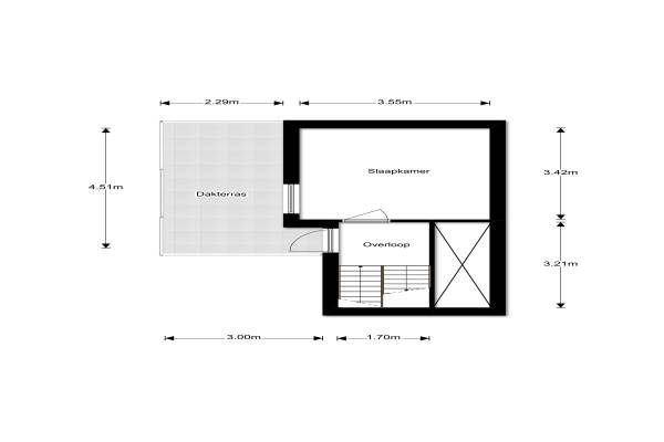
Het adres van deze woning uit 1979 is Arkplein 79 te Alkmaar. Het pand heeft een oppervlakte van 114m² en heeft 4 kamers kamers waarvan 3 slaapkamers. De geschatte waarde van deze woning is € 175.000.

Bekijk alle woningen in De Horn-Zuid

Gegevens van Maisonnette (appartement)

Bouwjaar
1979
Geschatte waarde
€ 175.000
Oppervlakte
114 m2
Inhoud
354 m3
Aantal kamers
4 kamers
Slaapkamers
3
Badkamers
1 badkamer en 1 apart toilet
Soort bouw
Bestaande bouw
Eigendomssituatie
Erfpacht (einddatum erfpacht: 29-04-2029)
Ligging
Aan rustige weg en in woonwijk
Tuin
Zonneterras

Voorzieningen in de buurt

Boodschappen0,7 km
Grote supermarkt0,8 km
Cafetaria0,7 km
Restaurant0,7 km
Huisarts0,5 km
Ziekenhuis4,5 km
Kinderdagverblijf0,4 km
BSO0,6 km
Alle voorzieningen in De Horn-Zuid

Binnenkijken bij Arkplein 79 te Alkmaar

Meer meldingen in deze omgeving

112 melding
Maandag 16-2-2026 om 02:25
Punterstraat, 1826CJ Alkmaar

Binnenkijken bij
Maandag 16-2-2026
Arkplein 87, 1826DL Alkmaar

112 melding
Zondag 15-2-2026 om 13:33
Punterstraat, 1826CJ Alkmaar

112 melding
Zondag 15-2-2026 om 03:05
Schoenerstraat, 1826CH Alkmaar

Binnenkijken bij
Donderdag 12-2-2026
Grevelingen 86, 1826AP Alkmaar

112 melding
Donderdag 12-2-2026 om 02:16
Zandkreek, Alkmaar

112 melding
Woensdag 11-2-2026 om 23:20
Vliestroom, Alkmaar

Binnenkijken bij
Dinsdag 10-2-2026
Vliestroom 32, 1826AJ Alkmaar

Direct een e-mail ontvangen bij nieuwe meldingen in deze regio?

Meld je dan GRATIS aan voor de Oozo Alert service voor De Horn-Zuid

Instellen

Meer nieuws in De Horn-Zuid

Weten hoe eenvoudig het is om af te vallen? Zonder pillen en smeersels en zonder je in het zweet te werken!
Kijk op eenvoudig-afvallen.nl

© 2012 - 2026 OOZO.nl - info@oozo.nl - Gegevens verwijderen? | Disclaimer | Privacy statement