Woning Oudiestaete 46 Alkmaar

Oudiestaete 46, 1825MN Alkmaar

Ontvang updates voor 't Rak-Noord

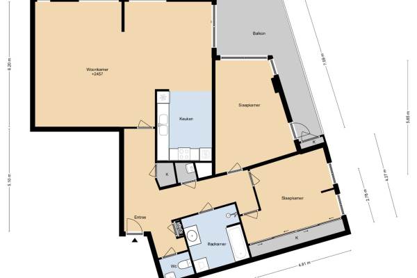
Het adres van deze woning uit 1986 is Oudiestaete 46 te Alkmaar. Het pand heeft een oppervlakte van 129m² en heeft 3 kamers kamers waarvan 2 slaapkamers. De geschatte waarde van deze woning is € 449.000.

Bekijk alle woningen in 't Rak-Noord

Gegevens van Galerijflat (appartement)

Bouwjaar
1986
Geschatte waarde
€ 449.000
Oppervlakte
129 m2
Inhoud
379 m3
Aantal kamers
3 kamers
Slaapkamers
2
Badkamers
1 badkamer en 1 apart toilet
Soort bouw
Bestaande bouw
Eigendomssituatie
Volle eigendom

Voorzieningen in de buurt

Boodschappen0,9 km
Grote supermarkt1,0 km
Cafetaria1,1 km
Restaurant1,5 km
Huisarts1,2 km
Ziekenhuis5,0 km
Kinderdagverblijf0,7 km
BSO0,4 km
Alle voorzieningen in 't Rak-Noord

Binnenkijken bij Oudiestaete 46 te Alkmaar

Meer meldingen in deze omgeving

112 melding
Maandag 22-12-2025 om 17:51
Faktorij, Alkmaar

112 melding
Zondag 21-12-2025 om 15:48
Katrolstraat, 1825LC Alkmaar

112 melding
Donderdag 18-12-2025 om 21:46
Spinnerij, Alkmaar

112 melding
Donderdag 18-12-2025 om 15:03
Ploegstraat, Alkmaar

Binnenkijken bij
Zaterdag 13-12-2025
Grutterij 31, 1825HK Alkmaar

112 melding
Vrijdag 12-12-2025 om 20:51
Gaffelstraat, Alkmaar

112 melding
Vrijdag 12-12-2025 om 03:47
Mouterij, 1825HX Alkmaar

Nieuw bedrijf
December 2025
Faktorij 78, 1825HE Alkmaar

Direct een e-mail ontvangen bij nieuwe meldingen in deze regio?

Meld je dan GRATIS aan voor de Oozo Alert service voor 't Rak-Noord

Instellen

Meer nieuws in 't Rak-Noord

Weten hoe eenvoudig het is om af te vallen? Zonder pillen en smeersels en zonder je in het zweet te werken!
Kijk op eenvoudig-afvallen.nl

© 2012 - 2025 OOZO.nl - info@oozo.nl - Gegevens verwijderen? | Disclaimer | Privacy statement