Woning Priemstraat 34 Alkmaar

Priemstraat 34, 1825KH Alkmaar

Ontvang updates voor 't Rak-Noord

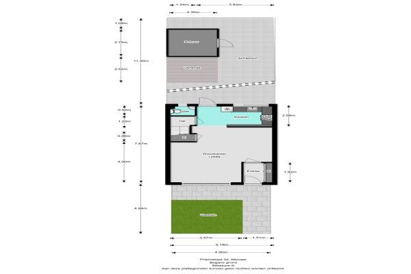
Het adres van deze woning uit 1983 is Priemstraat 34 te Alkmaar. Het pand heeft een oppervlakte van 97m² en een perceeloppervlakte van 136m² en heeft 5 kamers kamers waarvan 4 slaapkamers. De geschatte waarde van deze woning is € 215.000.

Bekijk alle woningen in 't Rak-Noord

Gegevens van Eengezinswoning, tussenwoning

Bouwjaar
1983
Geschatte waarde
€ 215.000
Oppervlakte
97 m2
Inhoud
315 m3
Aantal kamers
5 kamers
Slaapkamers
4
Soort bouw
Bestaande bouw
Ligging
Aan rustige weg en in woonwijk
Tuin
Voortuin

Voorzieningen in de buurt

Boodschappen0,9 km
Grote supermarkt1,0 km
Cafetaria1,1 km
Restaurant1,5 km
Huisarts1,2 km
Ziekenhuis5,0 km
Kinderdagverblijf0,7 km
BSO0,4 km
Alle voorzieningen in 't Rak-Noord

Binnenkijken bij Priemstraat 34 te Alkmaar

Meer meldingen in deze omgeving

112 melding
Dinsdag 20-1-2026 om 18:21
Faktorij, Alkmaar

112 melding
Zondag 18-1-2026 om 01:59
Slijperij, 1825HW Alkmaar

112 melding
Vrijdag 16-1-2026 om 02:36
Smederij, 1825HV Alkmaar

112 melding
Dinsdag 13-1-2026 om 18:30
Gieterij, 1825HP Alkmaar

112 melding
Maandag 12-1-2026 om 15:42
Drevelstraat, Alkmaar

112 melding
Zondag 11-1-2026 om 18:23
Paletstraat, Alkmaar

112 melding
Zaterdag 10-1-2026 om 13:14
Faktorij, Alkmaar

112 melding
Donderdag 8-1-2026 om 08:29
Koevoetstraat, Alkmaar

Direct een e-mail ontvangen bij nieuwe meldingen in deze regio?

Meld je dan GRATIS aan voor de Oozo Alert service voor 't Rak-Noord

Instellen

Meer nieuws in 't Rak-Noord

Weten hoe eenvoudig het is om af te vallen? Zonder pillen en smeersels en zonder je in het zweet te werken!
Kijk op eenvoudig-afvallen.nl

© 2012 - 2026 OOZO.nl - info@oozo.nl - Gegevens verwijderen? | Disclaimer | Privacy statement