Woning Priemstraat 46 Alkmaar

Priemstraat 46, 1825KJ Alkmaar

Ontvang updates voor 't Rak-Noord

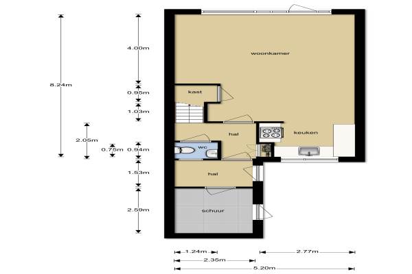
Het adres van deze woning uit 1983 is Priemstraat 46 te Alkmaar. Het pand heeft een oppervlakte van 109m² en een perceeloppervlakte van 129m² en heeft 5 kamers kamers waarvan 4 slaapkamers. De geschatte waarde van deze woning is € 239.500.

Bekijk alle woningen in 't Rak-Noord

Gegevens van Eengezinswoning, tussenwoning

Bouwjaar
1983
Geschatte waarde
€ 239.500
Oppervlakte
109 m2
Inhoud
395 m3
Aantal kamers
5 kamers
Slaapkamers
4
Badkamers
1 badkamer en 1 apart toilet
Soort bouw
Bestaande bouw
Eigendomssituatie
Volle eigendom
Ligging
In woonwijk en vrij uitzicht
Tuin
Achtertuin en voortuin
Achtertuin
45 m² (9m diep en 5m breed)

Voorzieningen in de buurt

Boodschappen0,9 km
Grote supermarkt1,0 km
Cafetaria1,1 km
Restaurant1,5 km
Huisarts1,2 km
Ziekenhuis5,0 km
Kinderdagverblijf0,7 km
BSO0,4 km
Alle voorzieningen in 't Rak-Noord

Binnenkijken bij Priemstraat 46 te Alkmaar

Meer meldingen in deze omgeving

112 melding
Zaterdag 10-1-2026 om 13:14
Faktorij, Alkmaar

112 melding
Donderdag 8-1-2026 om 08:29
Koevoetstraat, Alkmaar

112 melding
Dinsdag 6-1-2026 om 10:14
Koevoetstraat, Alkmaar

112 melding
Zaterdag 3-1-2026 om 13:29
Mulderij, 1825JR Alkmaar

112 melding
Donderdag 1-1-2026 om 10:56
Priemstraat, Alkmaar

Nieuw bedrijf
Januari 2026
Mouterij 6, 1825HX Alkmaar

Nieuw bedrijf
Januari 2026
Mouterij 6, 1825HX Alkmaar

Nieuw bedrijf
Januari 2026
Kompasweg 4, 1825LW Alkmaar

Direct een e-mail ontvangen bij nieuwe meldingen in deze regio?

Meld je dan GRATIS aan voor de Oozo Alert service voor 't Rak-Noord

Instellen

Meer nieuws in 't Rak-Noord

Weten hoe eenvoudig het is om af te vallen? Zonder pillen en smeersels en zonder je in het zweet te werken!
Kijk op eenvoudig-afvallen.nl

© 2012 - 2026 OOZO.nl - info@oozo.nl - Gegevens verwijderen? | Disclaimer | Privacy statement