Woning Hoornsekade 10 Alkmaar

Hoornsekade 10, 1823BJ Alkmaar

Ontvang updates voor Rekerbuurt en Ooievaarsnest

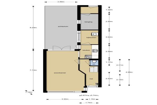
Het adres van deze woning uit 1940 is Hoornsekade 10 te Alkmaar. Het pand heeft een oppervlakte van 92m² en een perceeloppervlakte van 99m² en heeft 5 kamers kamers waarvan 4 slaapkamers. De geschatte waarde van deze woning is € 260.000.

Bekijk alle woningen in Rekerbuurt en Ooievaarsnest

Gegevens van Eengezinswoning, tussenwoning

Bouwjaar
1940
Geschatte waarde
€ 260.000
Oppervlakte
92 m2
Inhoud
360 m3
Aantal kamers
5 kamers
Slaapkamers
4
Badkamers
1 badkamer en 1 apart toilet
Soort bouw
Bestaande bouw
Eigendomssituatie
Volle eigendom
Ligging
In woonwijk en aan vaarwater
Tuin
Achtertuin en voortuin

Voorzieningen in de buurt

Boodschappen0,7 km
Grote supermarkt0,7 km
Cafetaria0,7 km
Restaurant0,7 km
Huisarts1,3 km
Ziekenhuis2,1 km
Kinderdagverblijf0,7 km
BSO0,7 km
Alle voorzieningen in Rekerbuurt en Ooievaarsnest

Binnenkijken bij Hoornsekade 10 te Alkmaar

Meer meldingen in deze omgeving

112 melding
Zondag 7-12-2025 om 01:49
Frieseweg, Alkmaar

Binnenkijken bij
Zaterdag 6-12-2025
Burgemeester G.Bosstraat 4, 1823AL Alkmaar

Nieuw bedrijf
December 2025
Rekerstraat 26, 1823BD Alkmaar

112 melding
Maandag 1-12-2025 om 19:56
Ooievaarstraat, 1823AN Alkmaar

112 melding
Maandag 1-12-2025 om 19:49
Frieseweg, Alkmaar

112 melding
Maandag 1-12-2025 om 19:47
Ooievaarstraat, 1823AN Alkmaar

112 melding
Maandag 1-12-2025 om 11:16
Westfriesepad, 1823BZ Alkmaar

112 melding
Zaterdag 29-11-2025 om 16:27
Westfriesepad, 1823BZ Alkmaar

Direct een e-mail ontvangen bij nieuwe meldingen in deze regio?

Meld je dan GRATIS aan voor de Oozo Alert service voor Rekerbuurt en Ooievaarsnest

Instellen

Meer nieuws in Rekerbuurt en Ooievaarsnest

Weten hoe eenvoudig het is om af te vallen? Zonder pillen en smeersels en zonder je in het zweet te werken!
Kijk op eenvoudig-afvallen.nl

© 2012 - 2025 OOZO.nl - info@oozo.nl - Gegevens verwijderen? | Disclaimer | Privacy statement