Woning Schermerweg 94D3 Alkmaar

Schermerweg 94D3, 1821BJ Alkmaar

Ontvang updates voor Schermereiland en Omval

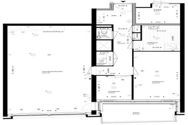
Het adres van deze woning uit 2025 is Schermerweg 94D3 te Alkmaar. Het pand heeft een oppervlakte van 98m² en heeft 3 kamers kamers waarvan 2 slaapkamers. De geschatte waarde van deze woning is € 599.000.

Bekijk alle woningen in Schermereiland en Omval

Gegevens van Portiekflat (appartement)

Bouwjaar
2025
Geschatte waarde
€ 599.000
Oppervlakte
98 m2
Inhoud
294 m3
Aantal kamers
3 kamers
Slaapkamers
2
Badkamers
1 badkamer en 1 apart toilet
Soort bouw
Bestaande bouw
Eigendomssituatie
Volle eigendom
Ligging
Aan rustige weg, aan vaarwater en aan water

Voorzieningen in de buurt

Boodschappen1,0 km
Grote supermarkt1,0 km
Cafetaria1,0 km
Restaurant1,0 km
Huisarts1,1 km
Ziekenhuis2,5 km
Kinderdagverblijf0,4 km
BSO1,1 km
Alle voorzieningen in Schermereiland en Omval

Binnenkijken bij Schermerweg 94D3 te Alkmaar

Meer meldingen in deze omgeving

Onroerend goed
Vrijdag 10-4-2026
Alexander Flemingstraat 17, 1821BK Alkmaar

Nieuw bedrijf
April 2026
Waterschapstraat 1, 1821AR Alkmaar

Nieuw bedrijf
April 2026
Boezemsingel 3, 1821AH Alkmaar

112 melding
Donderdag 9-4-2026 om 22:08
Westdijk, 1812MC Alkmaar

112 melding
Donderdag 9-4-2026 om 04:47
't Veneetse Eiland, Alkmaar

112 melding
Zondag 5-4-2026 om 13:09
Eilandswal, 1821AA Alkmaar

Binnenkijken bij
Vrijdag 3-4-2026
Jaagpad 193, 1821CH Alkmaar

112 melding
Donderdag 2-4-2026 om 10:01
Schermerweg, Alkmaar

Direct een e-mail ontvangen bij nieuwe meldingen in deze regio?

Meld je dan GRATIS aan voor de Oozo Alert service voor Schermereiland en Omval

Instellen

Meer nieuws in Schermereiland en Omval

Weten hoe eenvoudig het is om af te vallen? Zonder pillen en smeersels en zonder je in het zweet te werken!
Kijk op eenvoudig-afvallen.nl

© 2012 - 2026 OOZO.nl - info@oozo.nl - Gegevens verwijderen? | Disclaimer | Privacy statement