Woning Catsstraat 14 Alkmaar

Catsstraat 14, 1813ZC Alkmaar

Ontvang updates voor Oud-Overdie

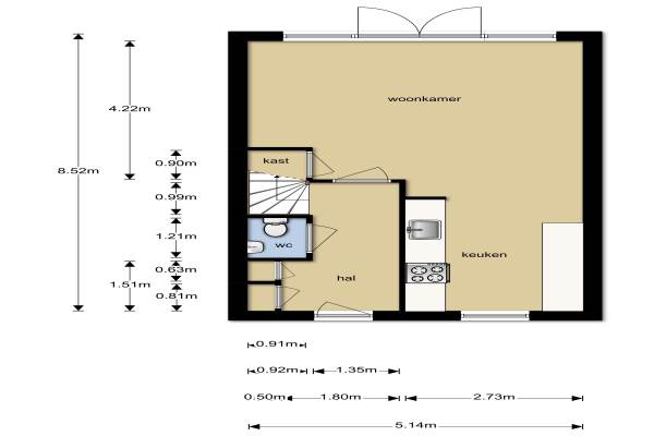
Het adres van deze woning uit 2017 is Catsstraat 14 te Alkmaar. Het pand heeft een oppervlakte van 119m² en heeft 6 kamers kamers waarvan 4 slaapkamers. De geschatte waarde van deze woning is € 339.000.

Bekijk alle woningen in Oud-Overdie

Gegevens van Eengezinswoning, tussenwoning

Bouwjaar
2017
Geschatte waarde
€ 339.000
Oppervlakte
119 m2
Inhoud
459 m3
Aantal kamers
6 kamers
Slaapkamers
4
Badkamers
1 badkamer en 1 apart toilet
Soort bouw
Bestaande bouw
Eigendomssituatie
Volle eigendom
Ligging
In woonwijk
Tuin
Achtertuin
Achtertuin
25 m² (5m diep en 5m breed)

Voorzieningen in de buurt

Boodschappen0,5 km
Grote supermarkt0,5 km
Cafetaria0,3 km
Restaurant0,5 km
Huisarts1,2 km
Ziekenhuis1,8 km
Kinderdagverblijf0,4 km
BSO0,8 km
Alle voorzieningen in Oud-Overdie

Binnenkijken bij Catsstraat 14 te Alkmaar

Meer meldingen in deze omgeving

Binnenkijken bij
Dinsdag 10-3-2026
De Ruijterstraat 11, 1813TT Alkmaar

112 melding
Maandag 9-3-2026 om 20:08
Dathenusstraat, Alkmaar

Nieuw bedrijf
Maart 2026
Spieghelstraat 6, 1813XC Alkmaar

112 melding
Zaterdag 28-2-2026 om 18:21
Karel Doormankade, Alkmaar

112 melding
Vrijdag 27-2-2026 om 11:33
Coornhertkade, 1813VX Alkmaar

Nieuw bedrijf
Februari 2026
Trompstraat 89, 1813SM Alkmaar

112 melding
Donderdag 26-2-2026 om 14:44
De Ruijterstraat, Alkmaar

Binnenkijken bij
Dinsdag 24-2-2026
Piet Heynstraat 55, 1813ST Alkmaar

Direct een e-mail ontvangen bij nieuwe meldingen in deze regio?

Meld je dan GRATIS aan voor de Oozo Alert service voor Oud-Overdie

Instellen

Meer nieuws in Oud-Overdie

Weten hoe eenvoudig het is om af te vallen? Zonder pillen en smeersels en zonder je in het zweet te werken!
Kijk op eenvoudig-afvallen.nl

© 2012 - 2026 OOZO.nl - info@oozo.nl - Gegevens verwijderen? | Disclaimer | Privacy statement