Woning Lievenshof 20 Alkmaar

Lievenshof 20, 1816KH Alkmaar

Ontvang updates voor De Hoef I en II

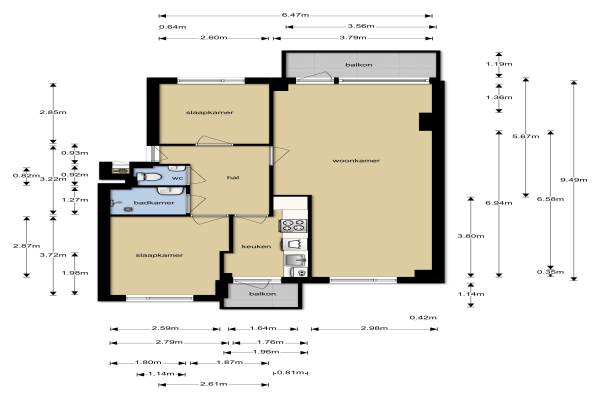
Het adres van deze woning uit 1963 is Lievenshof 20 te Alkmaar. Het pand heeft een oppervlakte van 67m² en heeft 3 kamers kamers waarvan 2 slaapkamers. De geschatte waarde van deze woning is € 150.000.

Bekijk alle woningen in De Hoef I en II

Gegevens van Bovenwoning (appartement)

Bouwjaar
1963
Geschatte waarde
€ 150.000
Oppervlakte
67 m2
Inhoud
220 m3
Aantal kamers
3 kamers
Slaapkamers
2
Badkamers
1 badkamer en 1 apart toilet
Soort bouw
Bestaande bouw
Eigendomssituatie
Volle eigendom
Ligging
In woonwijk

Voorzieningen in de buurt

Boodschappen0,4 km
Grote supermarkt0,4 km
Cafetaria0,5 km
Restaurant0,5 km
Huisarts0,6 km
Ziekenhuis2,3 km
Kinderdagverblijf0,4 km
BSO0,4 km
Alle voorzieningen in De Hoef I en II

Binnenkijken bij Lievenshof 20 te Alkmaar

Meer meldingen in deze omgeving

112 melding
Vrijdag 19-12-2025 om 18:48
Bloemaertlaan, Alkmaar

112 melding
Maandag 15-12-2025 om 14:06
Van Ostadelaan, Alkmaar

112 melding
Maandag 15-12-2025 om 11:46
Jan van Goyenstraat, Alkmaar

112 melding
Maandag 15-12-2025 om 08:20
Jan de Heemstraat, 1816KB Alkmaar

112 melding
Maandag 15-12-2025 om 01:10
Jan de Heemstraat, 1816KB Alkmaar

112 melding
Zaterdag 13-12-2025 om 09:43
Lambert Doomerstraat, Alkmaar

112 melding
Donderdag 11-12-2025 om 20:10
Honthorstlaan, Alkmaar

112 melding
Donderdag 11-12-2025 om 06:37
Cornelis Begastraat, 1816TT Alkmaar

Direct een e-mail ontvangen bij nieuwe meldingen in deze regio?

Meld je dan GRATIS aan voor de Oozo Alert service voor De Hoef I en II

Instellen

Meer nieuws in De Hoef I en II

Weten hoe eenvoudig het is om af te vallen? Zonder pillen en smeersels en zonder je in het zweet te werken!
Kijk op eenvoudig-afvallen.nl

© 2012 - 2025 OOZO.nl - info@oozo.nl - Gegevens verwijderen? | Disclaimer | Privacy statement