Woning Willem de Zwijgerlaan 188 Alkmaar

Willem de Zwijgerlaan 188, 1814KH Alkmaar

Ontvang updates voor Dillenburg en Stadhouderskwartier

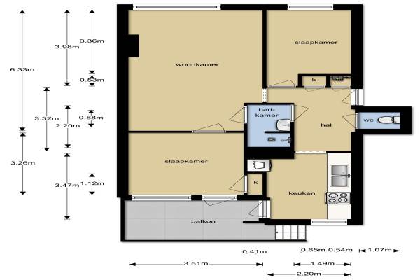
Het adres van deze woning uit 1965 is Willem de Zwijgerlaan 188 te Alkmaar. Het pand heeft een oppervlakte van 61m² en heeft 3 kamers kamers waarvan 2 slaapkamers. De geschatte waarde van deze woning is € 184.500.

Bekijk alle woningen in Dillenburg en Stadhouderskwartier

Gegevens van Portiekflat (appartement)

Bouwjaar
1965
Geschatte waarde
€ 184.500
Oppervlakte
61 m2
Inhoud
193 m3
Aantal kamers
3 kamers
Slaapkamers
2
Badkamers
1 badkamer en 1 apart toilet
Soort bouw
Bestaande bouw
Eigendomssituatie
Volle eigendom
Ligging
In woonwijk
Tuin
Achtertuin
Achtertuin
84 m² (12m diep en 7m breed)

Voorzieningen in de buurt

Boodschappen0,3 km
Grote supermarkt0,4 km
Cafetaria0,4 km
Restaurant0,2 km
Huisarts0,3 km
Ziekenhuis1,2 km
Kinderdagverblijf0,4 km
BSO0,4 km
Alle voorzieningen in Dillenburg en Stadhouderskwartier

Binnenkijken bij Willem de Zwijgerlaan 188 te Alkmaar

Meer meldingen in deze omgeving

Nieuw bedrijf
Oktober 2025
Frederik Hendriklaan 42, 1814JR Alkmaar

Binnenkijken bij
Woensdag 29-10-2025
Roskamstraat 16, 1814LJ Alkmaar

112 melding
Woensdag 22-10-2025 om 16:05
Dillenburgstraat, Alkmaar

112 melding
Dinsdag 21-10-2025 om 11:59
Anna van Burenstraat, Alkmaar

112 melding
Zondag 19-10-2025 om 14:37
Gijsbrechtstraat, Alkmaar

112 melding
Zaterdag 18-10-2025 om 20:20
Louise de Colignystraat, 1814JA Alkmaar

112 melding
Donderdag 16-10-2025 om 16:20
Dillenburgstraat, Alkmaar

112 melding
Donderdag 16-10-2025 om 16:00
Dillenburgstraat, Alkmaar

Direct een e-mail ontvangen bij nieuwe meldingen in deze regio?

Meld je dan GRATIS aan voor de Oozo Alert service voor Dillenburg en Stadhouderskwartier

Instellen

Meer nieuws in Dillenburg en Stadhouderskwartier

Weten hoe eenvoudig het is om af te vallen? Zonder pillen en smeersels en zonder je in het zweet te werken!
Kijk op eenvoudig-afvallen.nl

© 2012 - 2025 OOZO.nl - info@oozo.nl - Gegevens verwijderen? | Disclaimer | Privacy statement