Woning Wytemalaan 65 Alkmaar

Wytemalaan 65, 1814GV Alkmaar

Ontvang updates voor Kooimeer

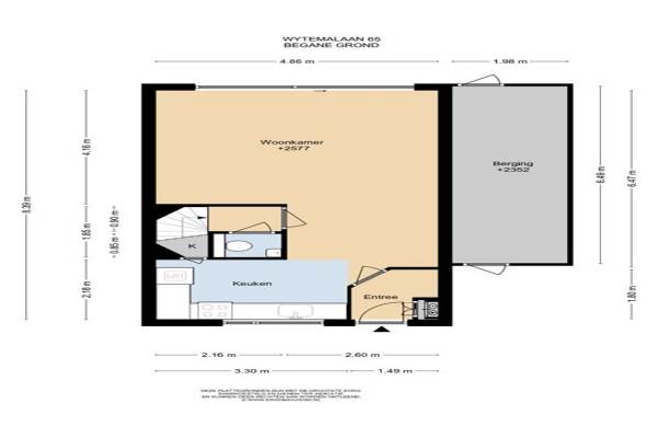
Het adres van deze woning uit 1984 is Wytemalaan 65 te Alkmaar. Het pand heeft een oppervlakte van 111m² en een perceeloppervlakte van 185m² en heeft 5 kamers kamers waarvan 4 slaapkamers. De geschatte waarde van deze woning is € 495.000.

Bekijk alle woningen in Kooimeer

Gegevens van Eengezinswoning

Bouwjaar
1984
Geschatte waarde
€ 495.000
Oppervlakte
111 m2
Inhoud
397 m3
Aantal kamers
5 kamers
Slaapkamers
4
Badkamers
1 badkamer
Soort bouw
Bestaande bouw
Eigendomssituatie
Volle eigendom
Tuin
Tuin
Achtertuin
60 m² (8 meter diep en 7,5 meter breed)

Voorzieningen in de buurt

Boodschappen0,4 km
Grote supermarkt0,4 km
Cafetaria0,4 km
Restaurant0,4 km
Huisarts0,4 km
Ziekenhuis1,5 km
Kinderdagverblijf0,4 km
BSO0,4 km
Alle voorzieningen in Kooimeer

Binnenkijken bij Wytemalaan 65 te Alkmaar

Meer meldingen in deze omgeving

112 melding
Woensdag 17-12-2025 om 11:04
Amalia van Solmsstraat, Alkmaar

112 melding
Maandag 15-12-2025 om 08:13
Amalia van Solmsstraat, Alkmaar

112 melding
Donderdag 11-12-2025 om 07:17
Kooimeer

112 melding
Donderdag 11-12-2025 om 02:45
Prins Alexanderstraat, Alkmaar

112 melding
Woensdag 10-12-2025 om 22:15
Verkeersplein Kooimeer, 1814MC Alkmaar

112 melding
Woensdag 10-12-2025 om 22:13
Verkeersplein Kooimeer, 1814MC Alkmaar

112 melding
Maandag 1-12-2025 om 15:09
Amalia van Solmsstraat, 1814NM Alkmaar

112 melding
Maandag 1-12-2025 om 13:52
Prins Alexanderstraat, Alkmaar

Direct een e-mail ontvangen bij nieuwe meldingen in deze regio?

Meld je dan GRATIS aan voor de Oozo Alert service voor Kooimeer

Instellen

Meer nieuws in Kooimeer

Weten hoe eenvoudig het is om af te vallen? Zonder pillen en smeersels en zonder je in het zweet te werken!
Kijk op eenvoudig-afvallen.nl

© 2012 - 2025 OOZO.nl - info@oozo.nl - Gegevens verwijderen? | Disclaimer | Privacy statement