Woning Het Baken 114 Almelo

Het Baken 114, 7607AA Almelo

Ontvang updates voor Binnenstad-Noord

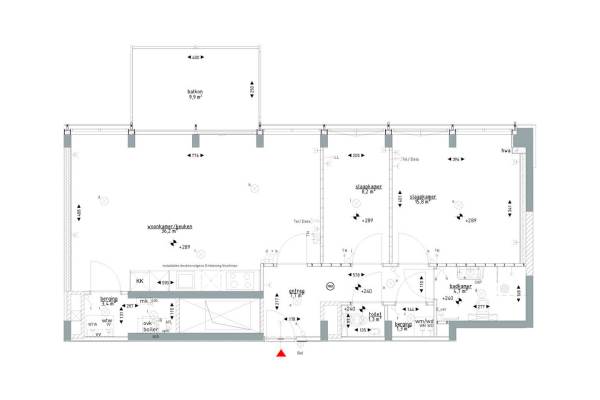
Het adres van deze woning uit 2023 is Het Baken 114 te Almelo. Het pand heeft een oppervlakte van 82m² en heeft 3 kamers kamers waarvan 2 slaapkamers. De geschatte waarde van deze woning is € 325.000.

Bekijk alle woningen in Binnenstad-Noord

Gegevens van Portiekflat (appartement)

Bouwjaar
2023
Geschatte waarde
€ 325.000
Oppervlakte
82 m2
Inhoud
345 m3
Aantal kamers
3 kamers
Slaapkamers
2
Badkamers
1 badkamer en 1 apart toilet
Soort bouw
Bestaande bouw
Eigendomssituatie
Volle eigendom
Ligging
In centrum

Voorzieningen in de buurt

Boodschappen0,3 km
Grote supermarkt0,6 km
Cafetaria0,2 km
Restaurant0,2 km
Huisarts0,4 km
Ziekenhuis3,7 km
Kinderdagverblijf0,5 km
BSO0,6 km
Alle voorzieningen in Binnenstad-Noord

Binnenkijken bij Het Baken 114 te Almelo

Meer meldingen in deze omgeving

112 melding
Dinsdag 20-1-2026 om 08:33
Stationsplein, 7607GD Almelo

Binnenkijken bij
Zaterdag 17-1-2026
Ootmarsumsestraat 1, 7607AV Almelo

Binnenkijken bij
Vrijdag 9-1-2026
De Molenstreng 4A, 7607CT Almelo

Binnenkijken bij
Vrijdag 9-1-2026
Noorderes 13, 7607AD Almelo

Binnenkijken bij
Dinsdag 6-1-2026
Oosteres 67, 7607AR Almelo

112 melding
Zondag 4-1-2026 om 16:08
De Galerij, 7607HR Almelo

Nieuw bedrijf
Januari 2026
Aletta Jacobsstraat 29, 7607SV Almelo

Nieuw bedrijf
December 2025
Stationsstraat 11, 7607GX Almelo

Direct een e-mail ontvangen bij nieuwe meldingen in deze regio?

Meld je dan GRATIS aan voor de Oozo Alert service voor Binnenstad-Noord

Instellen

Meer nieuws in Binnenstad-Noord

Weten hoe eenvoudig het is om af te vallen? Zonder pillen en smeersels en zonder je in het zweet te werken!
Kijk op eenvoudig-afvallen.nl

© 2012 - 2026 OOZO.nl - info@oozo.nl - Gegevens verwijderen? | Disclaimer | Privacy statement