Woning Werfstraat 1-11 Almelo

Werfstraat 1--11, 7607HJ Almelo

Ontvang updates voor Binnenstad-Zuid

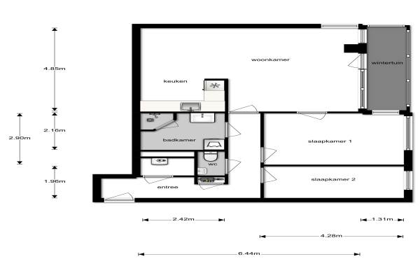
Het adres van deze woning uit 1999 is Werfstraat 1-11 te Almelo. Het pand heeft een oppervlakte van 87m² en heeft 3 kamers kamers waarvan 2 slaapkamers. De geschatte waarde van deze woning is € 135.000.

Bekijk alle woningen in Binnenstad-Zuid

Gegevens van Portiekflat (appartement)

Bouwjaar
1999
Geschatte waarde
€ 135.000
Oppervlakte
87 m2
Inhoud
300 m3
Aantal kamers
3 kamers
Slaapkamers
2
Badkamers
1 badkamer en 1 apart toilet
Soort bouw
Bestaande bouw
Eigendomssituatie
Volle eigendom
Ligging
In centrum en vrij uitzicht

Voorzieningen in de buurt

Boodschappen0,2 km
Grote supermarkt0,3 km
Cafetaria0,2 km
Restaurant0,2 km
Huisarts0,5 km
Ziekenhuis3,2 km
Kinderdagverblijf0,6 km
BSO0,6 km
Alle voorzieningen in Binnenstad-Zuid

Binnenkijken bij Werfstraat 1-11 te Almelo

Meer meldingen in deze omgeving

Binnenkijken bij
Zaterdag 20-12-2025
Bornsestraat 86, 7607KS Almelo

112 melding
Donderdag 18-12-2025 om 10:17
Burgemeester Raveslootsingel, 7607GK Almelo

112 melding
Donderdag 18-12-2025 om 10:16
Burgemeester Raveslootsingel, 7607GK Almelo

Binnenkijken bij
Zondag 14-12-2025
Boompjes 2, 7607HG Almelo

Nieuw bedrijf
December 2025
Zuiderstraat 1a, 7607KA Almelo

Binnenkijken bij
Woensdag 10-12-2025
Hagenborgh 135, 7607JV Almelo

Binnenkijken bij
Zaterdag 6-12-2025
Bornsestraat 62B, 7607KR Almelo

Faillissement
Donderdag 4-12-2025
Grotestraat 129, 7607CH Almelo

Direct een e-mail ontvangen bij nieuwe meldingen in deze regio?

Meld je dan GRATIS aan voor de Oozo Alert service voor Binnenstad-Zuid

Instellen

Meer nieuws in Binnenstad-Zuid

Weten hoe eenvoudig het is om af te vallen? Zonder pillen en smeersels en zonder je in het zweet te werken!
Kijk op eenvoudig-afvallen.nl

© 2012 - 2025 OOZO.nl - info@oozo.nl - Gegevens verwijderen? | Disclaimer | Privacy statement