Woning Tulpenstraat 8 Almelo

Tulpenstraat 8, 7601AZ Almelo

Ontvang updates voor Arendsboer en omgeving Noord

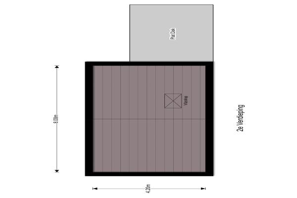
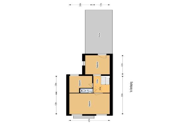
Het adres van deze woning uit 1926 is Tulpenstraat 8 te Almelo. Het pand heeft een oppervlakte van 99m² en een perceeloppervlakte van 250m² en heeft 5 kamers kamers waarvan 3 slaapkamers. De geschatte waarde van deze woning is € 159.000.

Bekijk alle woningen in Arendsboer en omgeving Noord

Gegevens van Eengezinswoning, hoekwoning

Bouwjaar
1926
Geschatte waarde
€ 159.000
Oppervlakte
99 m2
Inhoud
386 m3
Aantal kamers
5 kamers
Slaapkamers
3
Badkamers
1 badkamer en 2 aparte toiletten
Soort bouw
Bestaande bouw
Eigendomssituatie
Volle eigendom
Ligging
Aan rustige weg en in woonwijk
Tuin
Achtertuin en voortuin
Achtertuin
120 m² (24m diep en 5m breed)

Voorzieningen in de buurt

Boodschappen0,3 km
Grote supermarkt0,4 km
Cafetaria0,4 km
Restaurant0,4 km
Huisarts0,4 km
Ziekenhuis2,8 km
Kinderdagverblijf0,3 km
BSO0,8 km
Alle voorzieningen in Arendsboer en omgeving Noord

Binnenkijken bij Tulpenstraat 8 te Almelo

Meer meldingen in deze omgeving

Binnenkijken bij
Dinsdag 2-12-2025
Begoniastraat 11, 7601AA Almelo

Binnenkijken bij
Vrijdag 28-11-2025
Dahliastraat 9F, 7601AW Almelo

Binnenkijken bij
Vrijdag 28-11-2025
Zwanebloemstraat 11, 7601XZ Almelo

Binnenkijken bij
Vrijdag 14-11-2025
Zwanebloemstraat 81, 7601XX Almelo

Binnenkijken bij
Dinsdag 11-11-2025
Dahliastraat 9E, 7601AW Almelo

Nieuw bedrijf
November 2025
Violierstraat 152, 7601GX Almelo

Nieuw bedrijf
November 2025
Zwanebloemstraat 75, 7601XX Almelo

Binnenkijken bij
Woensdag 29-10-2025
Bornerbroeksestraat 128, 7601BJ Almelo

Direct een e-mail ontvangen bij nieuwe meldingen in deze regio?

Meld je dan GRATIS aan voor de Oozo Alert service voor Arendsboer en omgeving Noord

Instellen

Meer nieuws in Arendsboer en omgeving Noord

Weten hoe eenvoudig het is om af te vallen? Zonder pillen en smeersels en zonder je in het zweet te werken!
Kijk op eenvoudig-afvallen.nl

© 2012 - 2025 OOZO.nl - info@oozo.nl - Gegevens verwijderen? | Disclaimer | Privacy statement