Woning Clematisstraat 71 Almelo

Clematisstraat 71, 7601EH Almelo

Ontvang updates voor Nieuwland

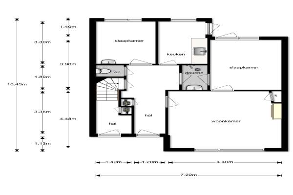
Het adres van deze woning uit 1958 is Clematisstraat 71 te Almelo. Het pand heeft een oppervlakte van 65m² en heeft 3 kamers kamers waarvan 2 slaapkamers. De geschatte waarde van deze woning is € 89.500.

Bekijk alle woningen in Nieuwland

Gegevens van Benedenwoning (appartement)

Bouwjaar
1958
Geschatte waarde
€ 89.500
Oppervlakte
65 m2
Inhoud
190 m3
Aantal kamers
3 kamers
Slaapkamers
2
Badkamers
1 badkamer en 1 apart toilet
Soort bouw
Bestaande bouw
Eigendomssituatie
Volle eigendom
Ligging
Aan rustige weg en in woonwijk
Tuin
Achtertuin

Voorzieningen in de buurt

Boodschappen0,4 km
Grote supermarkt0,7 km
Cafetaria0,3 km
Restaurant0,4 km
Huisarts0,5 km
Ziekenhuis2,9 km
Kinderdagverblijf0,3 km
BSO0,3 km
Alle voorzieningen in Nieuwland

Binnenkijken bij Clematisstraat 71 te Almelo

Meer meldingen in deze omgeving

Binnenkijken bij
Dinsdag 11-11-2025
Magnoliastraat 46, 7601ED Almelo

Binnenkijken bij
Dinsdag 11-11-2025
Clematisstraat 25, 7601EG Almelo

Nieuw bedrijf
November 2025
Lavendelstraat 30, 7601EZ Almelo

112 melding
Zondag 26-10-2025 om 12:02
Jasmijnstraat, Almelo

112 melding
Dinsdag 21-10-2025 om 19:10
Hoornbladstraat, Almelo

112 melding
Dinsdag 21-10-2025 om 19:09
Hoornbladstraat, Almelo

112 melding
Maandag 20-10-2025 om 19:19
Palmhof, 7601ST Almelo

Nieuw bedrijf
Oktober 2025
Hoornbladstraat 164, 7601ST Almelo

Direct een e-mail ontvangen bij nieuwe meldingen in deze regio?

Meld je dan GRATIS aan voor de Oozo Alert service voor Nieuwland

Instellen

Meer nieuws in Nieuwland

Weten hoe eenvoudig het is om af te vallen? Zonder pillen en smeersels en zonder je in het zweet te werken!
Kijk op eenvoudig-afvallen.nl

© 2012 - 2025 OOZO.nl - info@oozo.nl - Gegevens verwijderen? | Disclaimer | Privacy statement