Woning Parkweg 4 Almelo

Parkweg 4, 7602JG Almelo

Ontvang updates voor Parkweg en omgeving

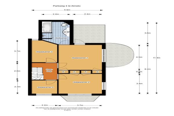
Het adres van deze woning uit 1927 is Parkweg 4 te Almelo. Het pand heeft een oppervlakte van 181m² en een perceeloppervlakte van 363m² en heeft 9 kamers kamers waarvan 6 slaapkamers. De geschatte waarde van deze woning is € 289.000.

Bekijk alle woningen in Parkweg en omgeving

Gegevens van Eengezinswoning, 2-onder-1-kapwoning

Bouwjaar
1927
Geschatte waarde
€ 289.000
Oppervlakte
181 m2
Inhoud
727 m3
Aantal kamers
9 kamers
Slaapkamers
6
Badkamers
2 badkamers en 1 apart toilet
Soort bouw
Bestaande bouw
Eigendomssituatie
Volle eigendom
Tuin
Achtertuin, voortuin en zijtuin
Achtertuin
135 m² (15m diep en 9m breed)

Voorzieningen in de buurt

Boodschappen0,6 km
Grote supermarkt0,6 km
Cafetaria0,6 km
Restaurant0,6 km
Huisarts0,3 km
Ziekenhuis4,5 km
Kinderdagverblijf0,4 km
BSO0,4 km
Alle voorzieningen in Parkweg en omgeving

Binnenkijken bij Parkweg 4 te Almelo

Meer meldingen in deze omgeving

Binnenkijken bij
Zaterdag 11-10-2025
Sluiskade Noordzijde 44, 7602HR Almelo

Nieuw bedrijf
Oktober 2025
Parkweg 22, 7602JH Almelo

Binnenkijken bij
Woensdag 24-9-2025
Mr. G.J. ter Kuilelaan 13, 7602ER Almelo

Binnenkijken bij
Woensdag 24-9-2025
Deken van der Waardenlaan 12, 7602GM Almelo

Binnenkijken bij
Vrijdag 19-9-2025
Tijhofslaan 2, 7602HG Almelo

Nieuw bedrijf
September 2025
Deken Reijgerslaan 3, 7602GC Almelo

112 melding
Dinsdag 5-8-2025 om 12:01
Roskamstraat, Almelo

112 melding
Vrijdag 1-8-2025 om 21:53
Klokkenbelt, 7602AG Almelo

Direct een e-mail ontvangen bij nieuwe meldingen in deze regio?

Meld je dan GRATIS aan voor de Oozo Alert service voor Parkweg en omgeving

Instellen

Meer nieuws in Parkweg en omgeving

Weten hoe eenvoudig het is om af te vallen? Zonder pillen en smeersels en zonder je in het zweet te werken!
Kijk op eenvoudig-afvallen.nl

© 2012 - 2025 OOZO.nl - info@oozo.nl - Gegevens verwijderen? | Disclaimer | Privacy statement