Woning Deken van der Waardenlaan 16 Almelo

Deken van der Waardenlaan 16, 7602GM Almelo

Ontvang updates voor Parkweg en omgeving

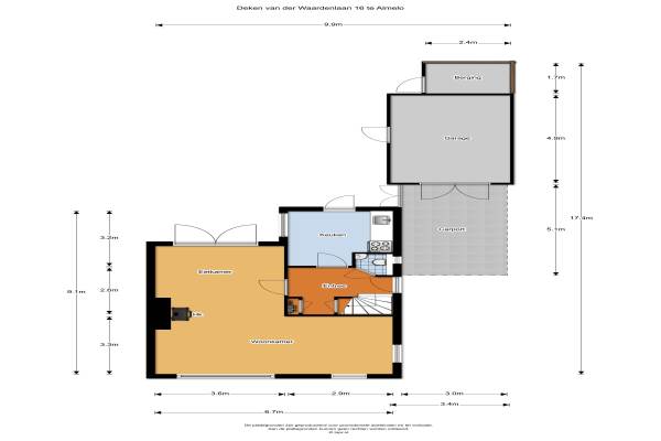
Het adres van deze woning uit 1958 is Deken van der Waardenlaan 16 te Almelo. Het pand heeft een oppervlakte van 101m² en een perceeloppervlakte van 299m² en heeft 5 kamers kamers waarvan 3 slaapkamers. De geschatte waarde van deze woning is € 225.000.

Bekijk alle woningen in Parkweg en omgeving

Gegevens van Eengezinswoning, 2-onder-1-kapwoning

Bouwjaar
1958
Geschatte waarde
€ 225.000
Oppervlakte
101 m2
Inhoud
423 m3
Aantal kamers
5 kamers
Slaapkamers
3
Badkamers
1 badkamer en 1 apart toilet
Soort bouw
Bestaande bouw
Eigendomssituatie
Volle eigendom
Ligging
Aan rustige weg en in woonwijk
Tuin
Achtertuin en voortuin
Achtertuin
165 m² (16,5m diep en 10m breed)

Voorzieningen in de buurt

Boodschappen0,6 km
Grote supermarkt0,6 km
Cafetaria0,6 km
Restaurant0,6 km
Huisarts0,3 km
Ziekenhuis4,5 km
Kinderdagverblijf0,4 km
BSO0,4 km
Alle voorzieningen in Parkweg en omgeving

Binnenkijken bij Deken van der Waardenlaan 16 te Almelo

Meer meldingen in deze omgeving

Nieuw bedrijf
April 2026
Mr. G.J. ter Kuilelaan 39, 7602ES Almelo

Binnenkijken bij
Dinsdag 14-4-2026
Mr. G.J. ter Kuilelaan 23, 7602ER Almelo

Nieuw bedrijf
Maart 2026
Wethouder Hinnenlaan 12, 7602EW Almelo

Binnenkijken bij
Zondag 22-3-2026
Volkerinksstraat 26, 7602HP Almelo

Nieuw bedrijf
Maart 2026
Vriezenveenseweg 11, 7602AA Almelo

Binnenkijken bij
Zaterdag 7-3-2026
Parkweg 57, 7602JE Almelo

Binnenkijken bij
Zaterdag 7-2-2026
Tijhofslaan 51, 7602HB Almelo

112 melding
Vrijdag 6-2-2026 om 12:45
Klokkenbelt, 7602AG Almelo

Direct een e-mail ontvangen bij nieuwe meldingen in deze regio?

Meld je dan GRATIS aan voor de Oozo Alert service voor Parkweg en omgeving

Instellen

Meer nieuws in Parkweg en omgeving

Weten hoe eenvoudig het is om af te vallen? Zonder pillen en smeersels en zonder je in het zweet te werken!
Kijk op eenvoudig-afvallen.nl

© 2012 - 2026 OOZO.nl - info@oozo.nl - Gegevens verwijderen? | Disclaimer | Privacy statement