Woning Mr. G.J. ter Kuilelaan 35 Almelo

Mr. G.J. ter Kuilelaan 35, 7602ES Almelo

Ontvang updates voor Parkweg en omgeving

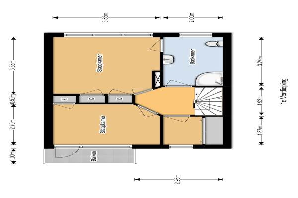
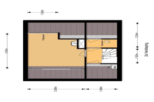
Het adres van deze woning uit 1964 is Mr. G.J. ter Kuilelaan 35 te Almelo. Het pand heeft een oppervlakte van 106m² en een perceeloppervlakte van 164m² en heeft 5 kamers kamers waarvan 4 slaapkamers. De geschatte waarde van deze woning is € 150.000.

Bekijk alle woningen in Parkweg en omgeving

Gegevens van Eengezinswoning, tussenwoning

Bouwjaar
1964
Geschatte waarde
€ 150.000
Oppervlakte
106 m2
Inhoud
380 m3
Aantal kamers
5 kamers
Slaapkamers
4
Badkamers
1 badkamer
Soort bouw
Bestaande bouw
Eigendomssituatie
Volle eigendom
Ligging
Aan rustige weg en in woonwijk
Tuin
Achtertuin en voortuin
Achtertuin
72 m² (0,12m diep en 0,06m breed)

Voorzieningen in de buurt

Boodschappen0,6 km
Grote supermarkt0,6 km
Cafetaria0,6 km
Restaurant0,6 km
Huisarts0,3 km
Ziekenhuis4,5 km
Kinderdagverblijf0,4 km
BSO0,4 km
Alle voorzieningen in Parkweg en omgeving

Binnenkijken bij Mr. G.J. ter Kuilelaan 35 te Almelo

Meer meldingen in deze omgeving

Nieuw bedrijf
December 2025
Noordikslaan 12, 7602CD Almelo

112 melding
Woensdag 17-12-2025 om 19:02
Klokkenbelt, 7602AG Almelo

Nieuw bedrijf
December 2025
Noordikslaan 12, 7602CD Almelo

Nieuw bedrijf
December 2025
Tijhofslaan 54, 7602HH Almelo

Binnenkijken bij
Vrijdag 21-11-2025
Noordikslaan 23, 7602CA Almelo

112 melding
Dinsdag 18-11-2025 om 14:39
Deken van der Waardenlaan, Almelo

Nieuw bedrijf
November 2025
Parkweg 15, 7602JC Almelo

Binnenkijken bij
Dinsdag 11-11-2025
Rengelinkstraat 11, 7602CK Almelo

Direct een e-mail ontvangen bij nieuwe meldingen in deze regio?

Meld je dan GRATIS aan voor de Oozo Alert service voor Parkweg en omgeving

Instellen

Meer nieuws in Parkweg en omgeving

Weten hoe eenvoudig het is om af te vallen? Zonder pillen en smeersels en zonder je in het zweet te werken!
Kijk op eenvoudig-afvallen.nl

© 2012 - 2025 OOZO.nl - info@oozo.nl - Gegevens verwijderen? | Disclaimer | Privacy statement