Woning Burcht 1 Almelo

Burcht 1, 7608JA Almelo

Ontvang updates voor Schelfhorst-Zuidwest

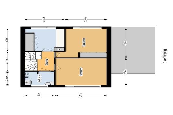
Het adres van deze woning uit 1972 is Burcht 1 te Almelo. Het pand heeft een oppervlakte van 121m² en een perceeloppervlakte van 275m² en heeft 5 kamers kamers waarvan 4 slaapkamers. De geschatte waarde van deze woning is € 195.000.

Bekijk alle woningen in Schelfhorst-Zuidwest

Gegevens van Eengezinswoning, hoekwoning

Bouwjaar
1972
Geschatte waarde
€ 195.000
Oppervlakte
121 m2
Inhoud
425 m3
Aantal kamers
5 kamers
Slaapkamers
4
Badkamers
1 badkamer en 1 apart toilet
Soort bouw
Bestaande bouw
Eigendomssituatie
Volle eigendom
Ligging
In woonwijk
Tuin
Achtertuin, voortuin en zijtuin
Achtertuin
57 m² (9,5m diep en 6m breed)

Voorzieningen in de buurt

Boodschappen0,9 km
Grote supermarkt0,8 km
Cafetaria0,8 km
Restaurant1,5 km
Huisarts0,8 km
Ziekenhuis6,4 km
Kinderdagverblijf0,6 km
BSO0,8 km
Alle voorzieningen in Schelfhorst-Zuidwest

Binnenkijken bij Burcht 1 te Almelo

Meer meldingen in deze omgeving

Binnenkijken bij
Zaterdag 6-12-2025
Ter Wadding 22, 7608LH Almelo

Binnenkijken bij
Vrijdag 14-11-2025
Beeckesteyn 59, 7608JH Almelo

Binnenkijken bij
Zaterdag 11-10-2025
Beeckesteyn 31, 7608JH Almelo

Binnenkijken bij
Zaterdag 11-10-2025
Te Werve 17, 7608LD Almelo

Nieuw bedrijf
Oktober 2025
Marquette 8, 7608JP Almelo

Binnenkijken bij
Donderdag 25-9-2025
Hofwijck 20, 7608LB Almelo

Binnenkijken bij
Vrijdag 19-9-2025
Hofwijck 18, 7608LB Almelo

Nieuw bedrijf
Juli 2025
Burcht 62, 7608JG Almelo

Direct een e-mail ontvangen bij nieuwe meldingen in deze regio?

Meld je dan GRATIS aan voor de Oozo Alert service voor Schelfhorst-Zuidwest

Instellen

Meer nieuws in Schelfhorst-Zuidwest

Weten hoe eenvoudig het is om af te vallen? Zonder pillen en smeersels en zonder je in het zweet te werken!
Kijk op eenvoudig-afvallen.nl

© 2012 - 2025 OOZO.nl - info@oozo.nl - Gegevens verwijderen? | Disclaimer | Privacy statement