Woning Lisztstraat 29 Almelo

Lisztstraat 29, 7604HH Almelo

Ontvang updates voor Aalderinkshoek Zuidwest

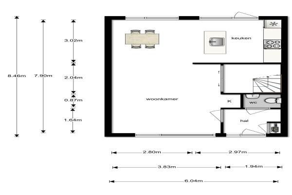
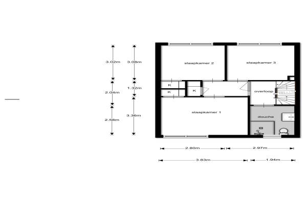
Het adres van deze woning uit 1972 is Lisztstraat 29 te Almelo. Het pand heeft een oppervlakte van 115m² en een perceeloppervlakte van 164m² en heeft 5 kamers kamers waarvan 4 slaapkamers. De geschatte waarde van deze woning is € 165.000.

Bekijk alle woningen in Aalderinkshoek Zuidwest

Gegevens van Eengezinswoning, tussenwoning

Bouwjaar
1972
Geschatte waarde
€ 165.000
Oppervlakte
115 m2
Inhoud
350 m3
Aantal kamers
5 kamers
Slaapkamers
4
Badkamers
1 badkamer en 1 apart toilet
Soort bouw
Bestaande bouw
Eigendomssituatie
Volle eigendom
Ligging
Aan rustige weg en in centrum
Tuin
Achtertuin en voortuin
Achtertuin
69 m² (11,5m diep en 6m breed)

Voorzieningen in de buurt

Boodschappen0,4 km
Grote supermarkt0,4 km
Cafetaria0,4 km
Restaurant0,4 km
Huisarts0,3 km
Ziekenhuis3,5 km
Kinderdagverblijf0,8 km
BSO0,9 km
Alle voorzieningen in Aalderinkshoek Zuidwest

Binnenkijken bij Lisztstraat 29 te Almelo

Meer meldingen in deze omgeving

112 melding
Dinsdag 9-12-2025 om 17:05
Beethovenlaan, Almelo

112 melding
Dinsdag 2-12-2025 om 14:12
Beethovenlaan, Almelo

Binnenkijken bij
Dinsdag 18-11-2025
Mozartstraat 248, 7604GX Almelo

Binnenkijken bij
Zondag 16-11-2025
Mozartstraat 140, 7604GT Almelo

Binnenkijken bij
Dinsdag 11-11-2025
Beethovenlaan 185, 7604GG Almelo

Binnenkijken bij
Woensdag 29-10-2025
Brucknerstraat 6, 7604HG Almelo

Binnenkijken bij
Zondag 19-10-2025
Mozartstraat 38, 7604GR Almelo

Binnenkijken bij
Vrijdag 19-9-2025
Mozartstraat 42, 7604GR Almelo

Direct een e-mail ontvangen bij nieuwe meldingen in deze regio?

Meld je dan GRATIS aan voor de Oozo Alert service voor Aalderinkshoek Zuidwest

Instellen

Meer nieuws in Aalderinkshoek Zuidwest

Weten hoe eenvoudig het is om af te vallen? Zonder pillen en smeersels en zonder je in het zweet te werken!
Kijk op eenvoudig-afvallen.nl

© 2012 - 2025 OOZO.nl - info@oozo.nl - Gegevens verwijderen? | Disclaimer | Privacy statement