Woning Zeven Bosjes 95 Almelo

Zeven Bosjes 95, 7609GA Almelo

Ontvang updates voor Leemslagen-Noord

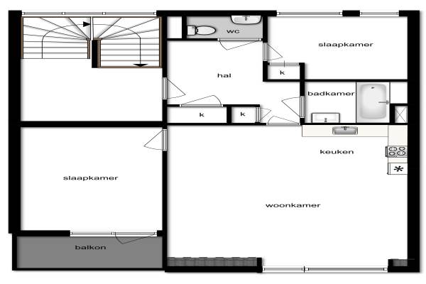
Het adres van deze woning uit 1980 is Zeven Bosjes 95 te Almelo. Het pand heeft een oppervlakte van 70m² en heeft 3 kamers kamers waarvan 2 slaapkamers. De geschatte waarde van deze woning is € 97.500.

Bekijk alle woningen in Leemslagen-Noord

Gegevens van Bovenwoning (appartement)

Bouwjaar
1980
Geschatte waarde
€ 97.500
Oppervlakte
70 m2
Inhoud
225 m3
Aantal kamers
3 kamers
Slaapkamers
2
Badkamers
1 badkamer en 1 apart toilet
Soort bouw
Bestaande bouw
Eigendomssituatie
Volle eigendom
Ligging
Aan rustige weg en in woonwijk

Voorzieningen in de buurt

Boodschappen0,3 km
Grote supermarkt0,3 km
Cafetaria0,3 km
Restaurant0,3 km
Huisarts0,8 km
Ziekenhuis0,8 km
Kinderdagverblijf0,6 km
BSO0,7 km
Alle voorzieningen in Leemslagen-Noord

Binnenkijken bij Zeven Bosjes 95 te Almelo

Meer meldingen in deze omgeving

Nieuw bedrijf
December 2025
De Graspieper 57, 7609SG Almelo

Binnenkijken bij
Vrijdag 5-12-2025
De Graspieper 70, 7609SC Almelo

Binnenkijken bij
Dinsdag 25-11-2025
De Fazant 70, 7609BP Almelo

112 melding
Vrijdag 21-11-2025 om 11:09
De Fazant, Almelo

Binnenkijken bij
Dinsdag 11-11-2025
De Grutto 97, 7609DE Almelo

112 melding
Zondag 2-11-2025 om 14:51
De Gors, Almelo

Nieuw bedrijf
Oktober 2025
De Geelgors 26, 7609DW Almelo

Onroerend goed
Woensdag 29-10-2025
De Gors 11, 7609DZ Almelo

Direct een e-mail ontvangen bij nieuwe meldingen in deze regio?

Meld je dan GRATIS aan voor de Oozo Alert service voor Leemslagen-Noord

Instellen

Meer nieuws in Leemslagen-Noord

Weten hoe eenvoudig het is om af te vallen? Zonder pillen en smeersels en zonder je in het zweet te werken!
Kijk op eenvoudig-afvallen.nl

© 2012 - 2025 OOZO.nl - info@oozo.nl - Gegevens verwijderen? | Disclaimer | Privacy statement