Woning De Fuut 8 Almelo

De Fuut 8, 7609BW Almelo

Ontvang updates voor Leemslagen-Noord

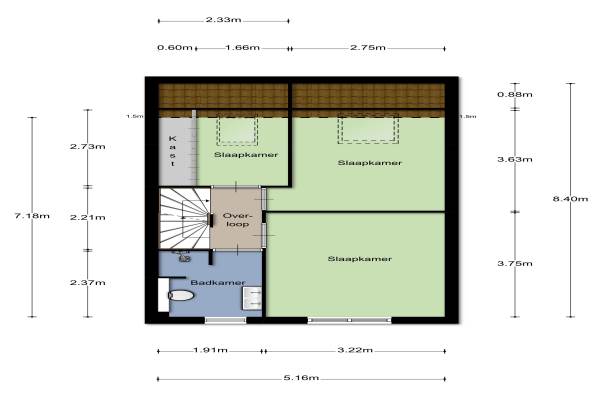
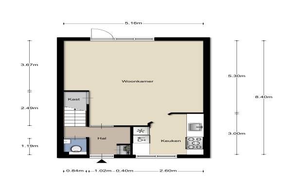
Het adres van deze woning uit 1980 is De Fuut 8 te Almelo. Het pand heeft een oppervlakte van 97m² en een perceeloppervlakte van 161m² en heeft 5 kamers kamers waarvan 4 slaapkamers. De geschatte waarde van deze woning is € 159.500.

Bekijk alle woningen in Leemslagen-Noord

Gegevens van Eengezinswoning, tussenwoning

Bouwjaar
1980
Geschatte waarde
€ 159.500
Oppervlakte
97 m2
Inhoud
332 m3
Aantal kamers
5 kamers
Slaapkamers
4
Badkamers
1 badkamer en 1 apart toilet
Soort bouw
Bestaande bouw
Eigendomssituatie
Volle eigendom
Ligging
Aan rustige weg en in woonwijk
Tuin
Achtertuin en voortuin
Achtertuin
85 m² (17m diep en 5m breed)

Voorzieningen in de buurt

Boodschappen0,3 km
Grote supermarkt0,3 km
Cafetaria0,3 km
Restaurant0,3 km
Huisarts0,8 km
Ziekenhuis0,8 km
Kinderdagverblijf0,6 km
BSO0,7 km
Alle voorzieningen in Leemslagen-Noord

Binnenkijken bij De Fuut 8 te Almelo

Meer meldingen in deze omgeving

Binnenkijken bij
Zaterdag 21-2-2026
De Graspieper 41, 7609SG Almelo

Binnenkijken bij
Zaterdag 7-2-2026
De Fazant 42, 7609BN Almelo

Binnenkijken bij
Zondag 1-2-2026
Zeven Bosjes 111, 7609GB Almelo

Binnenkijken bij
Zondag 1-2-2026
De Fazant 70, 7609BP Almelo

Binnenkijken bij
Donderdag 15-1-2026
De Gent 18, 7609DG Almelo

Binnenkijken bij
Zondag 11-1-2026
De Graspieper 68, 7609SC Almelo

Binnenkijken bij
Vrijdag 9-1-2026
De Fazant 23, 7609BS Almelo

Nieuw bedrijf
December 2025
De Graspieper 57, 7609SG Almelo

Direct een e-mail ontvangen bij nieuwe meldingen in deze regio?

Meld je dan GRATIS aan voor de Oozo Alert service voor Leemslagen-Noord

Instellen

Meer nieuws in Leemslagen-Noord

Weten hoe eenvoudig het is om af te vallen? Zonder pillen en smeersels en zonder je in het zweet te werken!
Kijk op eenvoudig-afvallen.nl

© 2012 - 2026 OOZO.nl - info@oozo.nl - Gegevens verwijderen? | Disclaimer | Privacy statement