Woning De Maraboe 6 Almelo

De Maraboe 6, 7609GW Almelo

Ontvang updates voor Leemslagen-Zuid

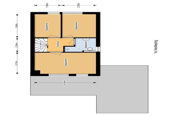
Het adres van deze woning uit 1986 is De Maraboe 6 te Almelo. Het pand heeft een oppervlakte van 141m² en een perceeloppervlakte van 252m² en heeft 7 kamers kamers waarvan 5 slaapkamers. De geschatte waarde van deze woning is € 259.000.

Bekijk alle woningen in Leemslagen-Zuid

Gegevens van Eengezinswoning, 2-onder-1-kapwoning

Bouwjaar
1986
Geschatte waarde
€ 259.000
Oppervlakte
141 m2
Inhoud
493 m3
Aantal kamers
7 kamers
Slaapkamers
5
Badkamers
1 badkamer en 1 apart toilet
Soort bouw
Bestaande bouw
Eigendomssituatie
Volle eigendom
Ligging
Aan rustige weg en in woonwijk
Tuin
Achtertuin, voortuin en zonneterras
Achtertuin
96 m² (12m diep en 8m breed)

Voorzieningen in de buurt

Boodschappen0,5 km
Grote supermarkt0,6 km
Cafetaria0,5 km
Restaurant0,6 km
Huisarts1,2 km
Ziekenhuis1,2 km
Kinderdagverblijf0,4 km
BSO0,4 km
Alle voorzieningen in Leemslagen-Zuid

Binnenkijken bij De Maraboe 6 te Almelo

Meer meldingen in deze omgeving

Binnenkijken bij
Dinsdag 9-12-2025
De Koperwiek 82, 7609GS Almelo

Binnenkijken bij
Zondag 7-12-2025
De Ibis 32, 7609ES Almelo

Binnenkijken bij
Zaterdag 15-11-2025
De Houtduif 12, 7609ED Almelo

Binnenkijken bij
Dinsdag 11-11-2025
De Koperwiek 77, 7609GV Almelo

Binnenkijken bij
Dinsdag 11-11-2025
De Koperwiek 19, 7609GT Almelo

Nieuw bedrijf
November 2025
De Hop 74, 7609ER Almelo

Nieuw bedrijf
Oktober 2025
De Havik 57, 7609EB Almelo

Binnenkijken bij
Woensdag 29-10-2025
De Koperwiek 30, 7609GR Almelo

Direct een e-mail ontvangen bij nieuwe meldingen in deze regio?

Meld je dan GRATIS aan voor de Oozo Alert service voor Leemslagen-Zuid

Instellen

Meer nieuws in Leemslagen-Zuid

Weten hoe eenvoudig het is om af te vallen? Zonder pillen en smeersels en zonder je in het zweet te werken!
Kijk op eenvoudig-afvallen.nl

© 2012 - 2025 OOZO.nl - info@oozo.nl - Gegevens verwijderen? | Disclaimer | Privacy statement