Woning De Hop 1 Almelo

De Hop 1, 7609EH Almelo

Ontvang updates voor Leemslagen-Zuid

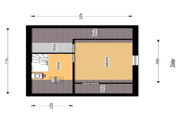
Het adres van deze woning uit 1983 is De Hop 1 te Almelo. Het pand heeft een oppervlakte van 95m² en een perceeloppervlakte van 308m² en heeft 5 kamers kamers waarvan 4 slaapkamers. De geschatte waarde van deze woning is € 179.500.

Bekijk alle woningen in Leemslagen-Zuid

Gegevens van Eengezinswoning, hoekwoning

Bouwjaar
1983
Geschatte waarde
€ 179.500
Oppervlakte
95 m2
Inhoud
369 m3
Aantal kamers
5 kamers
Slaapkamers
4
Badkamers
1 badkamer en 1 apart toilet
Soort bouw
Bestaande bouw
Eigendomssituatie
Volle eigendom
Ligging
Aan rustige weg en in woonwijk
Tuin
Achtertuin en voortuin
Achtertuin
160 m² (16m diep en 10m breed)

Voorzieningen in de buurt

Boodschappen0,5 km
Grote supermarkt0,6 km
Cafetaria0,5 km
Restaurant0,6 km
Huisarts1,2 km
Ziekenhuis1,2 km
Kinderdagverblijf0,4 km
BSO0,4 km
Alle voorzieningen in Leemslagen-Zuid

Binnenkijken bij De Hop 1 te Almelo

Meer meldingen in deze omgeving

Binnenkijken bij
Donderdag 22-1-2026
De Havik 17, 7609EA Almelo

Nieuw bedrijf
Januari 2026
Zeven Bosjes 134, 7609GK Almelo

Binnenkijken bij
Zondag 11-1-2026
De Koperwiek 21, 7609GT Almelo

Binnenkijken bij
Dinsdag 9-12-2025
De Koperwiek 82, 7609GS Almelo

Binnenkijken bij
Zondag 7-12-2025
De Ibis 32, 7609ES Almelo

Binnenkijken bij
Zaterdag 15-11-2025
De Houtduif 12, 7609ED Almelo

Binnenkijken bij
Dinsdag 11-11-2025
De Koperwiek 77, 7609GV Almelo

Binnenkijken bij
Dinsdag 11-11-2025
De Koperwiek 19, 7609GT Almelo

Direct een e-mail ontvangen bij nieuwe meldingen in deze regio?

Meld je dan GRATIS aan voor de Oozo Alert service voor Leemslagen-Zuid

Instellen

Meer nieuws in Leemslagen-Zuid

Weten hoe eenvoudig het is om af te vallen? Zonder pillen en smeersels en zonder je in het zweet te werken!
Kijk op eenvoudig-afvallen.nl

© 2012 - 2026 OOZO.nl - info@oozo.nl - Gegevens verwijderen? | Disclaimer | Privacy statement