Woning Rodosstraat 35 Almere

Rodosstraat 35, 1339VE Almere

Ontvang updates voor Eilandenbuurt

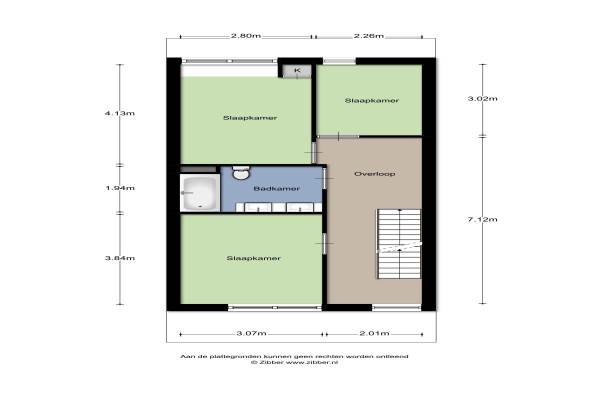
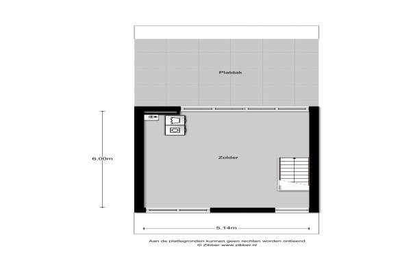
Het adres van deze woning uit 2003 is Rodosstraat 35 te Almere. Het pand heeft een oppervlakte van 144m² en een perceeloppervlakte van 143m² en heeft 5 kamers kamers waarvan 4 slaapkamers. De geschatte waarde van deze woning is € 260.000.

Bekijk alle woningen in Eilandenbuurt

Gegevens van Eengezinswoning, tussenwoning

Bouwjaar
2003
Geschatte waarde
€ 260.000
Oppervlakte
144 m2
Inhoud
400 m3
Aantal kamers
5 kamers
Slaapkamers
4
Soort bouw
Bestaande bouw
Ligging
In woonwijk en vrij uitzicht
Tuin
Achtertuin
Achtertuin
72 m² (13m diep en 5,5m breed)

Voorzieningen in de buurt

Boodschappen0,8 km
Grote supermarkt0,9 km
Cafetaria0,6 km
Restaurant0,8 km
Huisarts0,9 km
Ziekenhuis7,3 km
Kinderdagverblijf0,4 km
BSO0,4 km
Alle voorzieningen in Eilandenbuurt

Binnenkijken bij Rodosstraat 35 te Almere

Meer meldingen in deze omgeving

Nieuw bedrijf
November 2025
Texelstraat 42, 1339TL Almere

Nieuw bedrijf
November 2025
Rodosstraat 49, 1339VG Almere

Nieuw bedrijf
November 2025
Mallorcastraat 28, 1339XG Almere

Nieuw bedrijf
November 2025
Antillenweg 11, 1339KD Almere

Binnenkijken bij
Vrijdag 14-11-2025
Zanzibarstraat 51, 1339RP Almere

Binnenkijken bij
Vrijdag 14-11-2025
Siciliëstraat 16, 1339WE Almere

Binnenkijken bij
Vrijdag 14-11-2025
Jamaicastraat 33, 1339KM Almere

Binnenkijken bij
Vrijdag 14-11-2025
Arubapier 35, 1339KA Almere

Direct een e-mail ontvangen bij nieuwe meldingen in deze regio?

Meld je dan GRATIS aan voor de Oozo Alert service voor Eilandenbuurt

Instellen

Meer nieuws in Eilandenbuurt

Weten hoe eenvoudig het is om af te vallen? Zonder pillen en smeersels en zonder je in het zweet te werken!
Kijk op eenvoudig-afvallen.nl

© 2012 - 2025 OOZO.nl - info@oozo.nl - Gegevens verwijderen? | Disclaimer | Privacy statement