Woning Zanzibarstraat 42 Almere

Zanzibarstraat 42, 1339RS Almere

Ontvang updates voor Eilandenbuurt

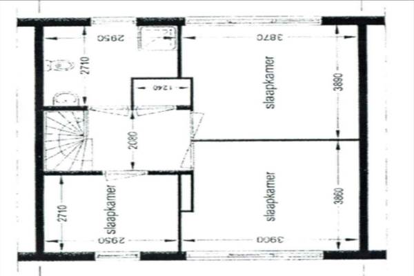
Het adres van deze woning uit 2002 is Zanzibarstraat 42 te Almere. Het pand heeft een oppervlakte van 108m² en een perceeloppervlakte van 211m² en heeft 4 kamers kamers waarvan 3 slaapkamers. De geschatte waarde van deze woning is € 175.000.

Bekijk alle woningen in Eilandenbuurt

Gegevens van Eengezinswoning, tussenwoning

Bouwjaar
2002
Geschatte waarde
€ 175.000
Oppervlakte
108 m2
Inhoud
340 m3
Aantal kamers
4 kamers
Slaapkamers
3
Soort bouw
Bestaande bouw
Eigendomssituatie
Erfpacht
Ligging
Aan rustige weg
Tuin
Achtertuin en voortuin
Achtertuin
84 m² (12m diep en 7m breed)

Voorzieningen in de buurt

Boodschappen0,8 km
Grote supermarkt0,9 km
Cafetaria0,6 km
Restaurant0,8 km
Huisarts0,9 km
Ziekenhuis7,3 km
Kinderdagverblijf0,4 km
BSO0,4 km
Alle voorzieningen in Eilandenbuurt

Binnenkijken bij Zanzibarstraat 42 te Almere

Meer meldingen in deze omgeving

112 melding
Donderdag 15-1-2026 om 13:14
Nova Zemblastraat, Almere

112 melding
Donderdag 15-1-2026 om 13:14
Nova Zemblastraat, Almere

112 melding
Donderdag 15-1-2026 om 13:08
Rodosstraat, Almere

112 melding
Donderdag 15-1-2026 om 13:04
Nova Zemblastraat, Almere

112 melding
Donderdag 15-1-2026 om 13:04
Nova Zemblastraat, Almere

112 melding
Donderdag 15-1-2026 om 13:03
Nova Zemblastraat, Almere

112 melding
Donderdag 15-1-2026 om 13:03
Nova Zemblastraat, Almere

112 melding
Donderdag 15-1-2026 om 13:03
Nova Zemblastraat, Almere

Direct een e-mail ontvangen bij nieuwe meldingen in deze regio?

Meld je dan GRATIS aan voor de Oozo Alert service voor Eilandenbuurt

Instellen

Meer nieuws in Eilandenbuurt

Weten hoe eenvoudig het is om af te vallen? Zonder pillen en smeersels en zonder je in het zweet te werken!
Kijk op eenvoudig-afvallen.nl

© 2012 - 2026 OOZO.nl - info@oozo.nl - Gegevens verwijderen? | Disclaimer | Privacy statement