Woning Leuvenhorststraat 1 Almere

Leuvenhorststraat 1, 1333ZJ Almere

Ontvang updates voor Landgoederenbuurt

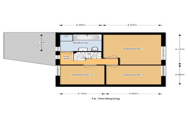
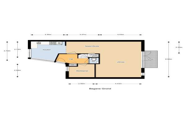
Het adres van deze woning uit 1992 is Leuvenhorststraat 1 te Almere. Het pand heeft een oppervlakte van 142m² en een perceeloppervlakte van 210m² en heeft 6 kamers kamers waarvan 4 slaapkamers. De geschatte waarde van deze woning is € 275.000.

Bekijk alle woningen in Landgoederenbuurt

Gegevens van Eengezinswoning, hoekwoning

Bouwjaar
1992
Geschatte waarde
€ 275.000
Oppervlakte
142 m2
Inhoud
435 m3
Aantal kamers
6 kamers
Slaapkamers
4
Badkamers
2 badkamers en 1 apart toilet
Soort bouw
Bestaande bouw
Eigendomssituatie
Volle eigendom
Tuin
Achtertuin en voortuin
Achtertuin
96 m² (12m diep en 8m breed)

Voorzieningen in de buurt

Boodschappen1,0 km
Grote supermarkt0,7 km
Cafetaria0,6 km
Restaurant1,0 km
Huisarts0,8 km
Ziekenhuis4,4 km
Kinderdagverblijf0,5 km
BSO0,9 km
Alle voorzieningen in Landgoederenbuurt

Binnenkijken bij Leuvenhorststraat 1 te Almere

Meer meldingen in deze omgeving

Nieuw bedrijf
November 2025
Sportlaan 23, 1333SZ Almere

Nieuw bedrijf
November 2025
Middachtenlaan 112, 1333XV Almere

Binnenkijken bij
Vrijdag 14-11-2025
Groevenbeekstraat 18, 1333XK Almere

Binnenkijken bij
Vrijdag 14-11-2025
Spanderswoudstraat 27, 1333TT Almere

Nieuw bedrijf
November 2025
Middachtenlaan 19, 1333XS Almere

Nieuw bedrijf
November 2025
Clingendaellaan 73, 1333WC Almere

Nieuw bedrijf
November 2025
Springendallaan 227, 1333XH Almere

Nieuw bedrijf
November 2025
Remmersteinpad 34, 1333XN Almere

Direct een e-mail ontvangen bij nieuwe meldingen in deze regio?

Meld je dan GRATIS aan voor de Oozo Alert service voor Landgoederenbuurt

Instellen

Meer nieuws in Landgoederenbuurt

Weten hoe eenvoudig het is om af te vallen? Zonder pillen en smeersels en zonder je in het zweet te werken!
Kijk op eenvoudig-afvallen.nl

© 2012 - 2025 OOZO.nl - info@oozo.nl - Gegevens verwijderen? | Disclaimer | Privacy statement