Woning Hennahof 5 Almere

Hennahof 5, 1339EB Almere

Ontvang updates voor Regenboogbuurt

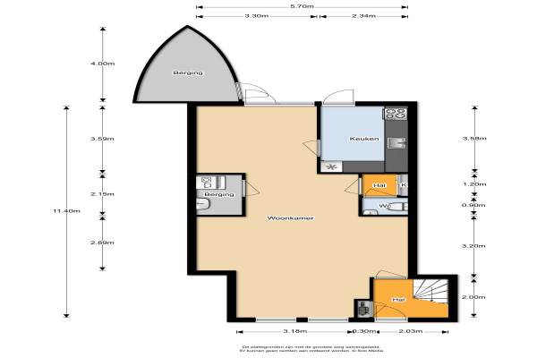
Het adres van deze woning uit 1996 is Hennahof 5 te Almere. Het pand heeft een oppervlakte van 111m² en een perceeloppervlakte van 106m² en heeft 4 kamers kamers waarvan 3 slaapkamers. De geschatte waarde van deze woning is € 200.000.

Bekijk alle woningen in Regenboogbuurt

Gegevens van Eengezinswoning, tussenwoning

Bouwjaar
1996
Geschatte waarde
€ 200.000
Oppervlakte
111 m2
Inhoud
370 m3
Aantal kamers
4 kamers
Slaapkamers
3
Badkamers
1 badkamer en 1 apart toilet
Soort bouw
Bestaande bouw
Eigendomssituatie
Volle eigendom
Ligging
In woonwijk
Tuin
Achtertuin en zonneterras
Achtertuin
48 m² (8m diep en 6m breed)

Voorzieningen in de buurt

Boodschappen0,6 km
Grote supermarkt0,7 km
Cafetaria0,6 km
Restaurant0,8 km
Huisarts0,9 km
Ziekenhuis6,5 km
Kinderdagverblijf0,4 km
BSO0,4 km
Alle voorzieningen in Regenboogbuurt

Binnenkijken bij Hennahof 5 te Almere

Meer meldingen in deze omgeving

Faillissement
Vrijdag 14-11-2025
Mintplantsoen 24, 1339CA Almere

Nieuw bedrijf
November 2025
Okerstraat 46, 1339AT Almere

Nieuw bedrijf
November 2025
Barnsteenstraat 7, 1339HJ Almere

Nieuw bedrijf
November 2025
Scharlakenstraat 34, 1339AD Almere

Nieuw bedrijf
November 2025
Terracottastraat 76, 1339BL Almere

Binnenkijken bij
Dinsdag 11-11-2025
Regenboogweg 72, 1339GV Almere

Binnenkijken bij
Dinsdag 11-11-2025
Beigepad 4, 1339HE Almere

Binnenkijken bij
Dinsdag 11-11-2025
Koraalstraat 15, 1339BX Almere

Direct een e-mail ontvangen bij nieuwe meldingen in deze regio?

Meld je dan GRATIS aan voor de Oozo Alert service voor Regenboogbuurt

Instellen

Meer nieuws in Regenboogbuurt

Weten hoe eenvoudig het is om af te vallen? Zonder pillen en smeersels en zonder je in het zweet te werken!
Kijk op eenvoudig-afvallen.nl

© 2012 - 2025 OOZO.nl - info@oozo.nl - Gegevens verwijderen? | Disclaimer | Privacy statement