Woning Pastelstraat 122 Almere

Pastelstraat 122, 1339JC Almere

Ontvang updates voor Regenboogbuurt

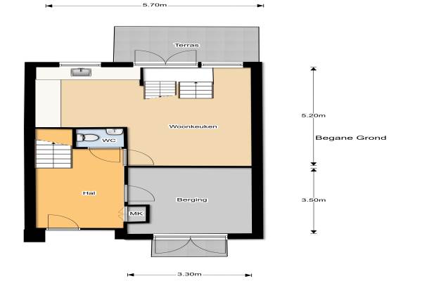
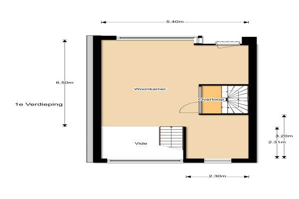
Het adres van deze woning uit 1996 is Pastelstraat 122 te Almere. Het pand heeft een oppervlakte van 120m² en een perceeloppervlakte van 169m² en heeft 5 kamers kamers waarvan 3 slaapkamers. De geschatte waarde van deze woning is € 225.000.

Bekijk alle woningen in Regenboogbuurt

Gegevens van Eengezinswoning, tussenwoning

Bouwjaar
1996
Geschatte waarde
€ 225.000
Oppervlakte
120 m2
Inhoud
395 m3
Aantal kamers
5 kamers
Slaapkamers
3
Badkamers
1 badkamer en 1 apart toilet
Soort bouw
Bestaande bouw
Eigendomssituatie
Volle eigendom
Ligging
Aan water, aan rustige weg, in woonwijk en vrij uitzicht
Tuin
Achtertuin en voortuin
Achtertuin
97 m² (17,1m diep en 5,7m breed)

Voorzieningen in de buurt

Boodschappen0,6 km
Grote supermarkt0,7 km
Cafetaria0,6 km
Restaurant0,8 km
Huisarts0,9 km
Ziekenhuis6,5 km
Kinderdagverblijf0,4 km
BSO0,4 km
Alle voorzieningen in Regenboogbuurt

Binnenkijken bij Pastelstraat 122 te Almere

Meer meldingen in deze omgeving

Binnenkijken bij
Zaterdag 21-2-2026
Hennahof 32, 1339EC Almere

Nieuw bedrijf
Februari 2026
Mintplantsoen 2, 1339CB Almere

Faillissement
Dinsdag 17-2-2026
Maisgeelstraat 6, 1339EP Almere

Faillissement
Dinsdag 17-2-2026
Mintplantsoen 24, 1339CA Almere

112 melding
Zaterdag 14-2-2026 om 22:42
Pastelstraat, Almere

Binnenkijken bij
Woensdag 11-2-2026
Pigmentstraat 7, 1339HA Almere

Binnenkijken bij
Dinsdag 10-2-2026
Paarlemoervijver 14, 1339CS Almere

Nieuw bedrijf
Februari 2026
Pastelstraat 1, 1339JE Almere

Direct een e-mail ontvangen bij nieuwe meldingen in deze regio?

Meld je dan GRATIS aan voor de Oozo Alert service voor Regenboogbuurt

Instellen

Meer nieuws in Regenboogbuurt

Weten hoe eenvoudig het is om af te vallen? Zonder pillen en smeersels en zonder je in het zweet te werken!
Kijk op eenvoudig-afvallen.nl

© 2012 - 2026 OOZO.nl - info@oozo.nl - Gegevens verwijderen? | Disclaimer | Privacy statement